Three-bedroom family house with large garden, driveway and excellent school links for growing families.
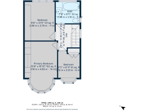
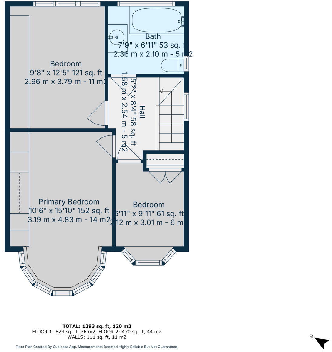
Three generous bedrooms and two reception rooms
Open-plan kitchen/family room overlooking large rear garden
Large decking area ideal for entertaining
Driveway with multiple off-street parking spaces
Freehold tenure; no reported flood risk
Loft and garden offer extension potential (STPP)
Solid brick walls; no confirmed wall insulation (may need upgrades)
Council tax band above average
This 1930s semi-detached house offers practical family living on a quiet, sought-after road. The ground floor includes a large front reception with bay window, an additional sitting room, utility and a modern open-plan kitchen/family room that looks out over the rear garden and decking — ideal for everyday family life and entertaining.
Upstairs are three generous bedrooms and a sizeable family bathroom; the loft and rear garden provide realistic scope to extend (STPP), matching similar neighbouring properties. A wide driveway to the front gives off-street parking for multiple vehicles, and the property is freehold with no reported flood risk.
Location is a strong driver: excellent local schooling nearby, green space within walking distance, and Harold Wood Elizabeth Line station plus local bus and road links make commuting straightforward. Broadband speeds and mobile signal are reported as good, and the wider area is regarded as affluent.
Buyers should note some practical considerations: the house is of solid-brick construction with no confirmed wall insulation (assumed), which may mean upgrading for energy efficiency. Council tax is above average. While bathrooms and the kitchen are described as modern, there may be further refurbishment or insulation works buyers want to budget for if extending or improving energy performance.
4 bedroom semi-detached house for sale in Squirrels Heath Road, Romford, RM3 — £650,000 • 4 bed • 2 bath • 1238 ft²
3 bedroom semi-detached house for sale in Craven Gardens, Harold. Park, Harold Wood, RM3 0DF, RM3 — £525,000 • 3 bed • 1 bath • 1023 ft²
3 bedroom end of terrace house for sale in Keighley Road, Romford, RM3 — £475,000 • 3 bed • 1 bath • 1916 ft²
3 bedroom semi-detached house for sale in Church Road, Romford, RM3 — £450,000 • 3 bed • 1 bath • 684 ft²
4 bedroom end of terrace house for sale in Juniper Way, Romford, RM3 — £675,000 • 4 bed • 2 bath • 1623 ft²
5 bedroom semi-detached house for sale in Arundel Road, Romford, RM3 — £725,000 • 5 bed • 2 bath


























































































































































