Elevated corner plot with conservatory and easy access to schools and meadows.
Three double bedrooms with built-in wardrobes and attic access
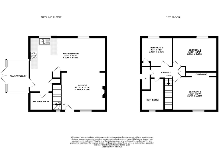
This well-kept three-bedroom semi-detached house sits on an elevated corner plot with a generous front lawn and low-maintenance rear garden. The ground floor offers a spacious open-plan living and contemporary kitchen area that flows through to a conservatory — ideal for casual family life and entertaining.
Upstairs are three double bedrooms served by a bathroom and a separate cloakroom; built-in wardrobes and attic access add useful storage. Practical features include solar panels, a downstairs shower room, double glazing throughout and two garden sheds, reducing upkeep and running costs.
Practical considerations: the property’s overall size is on the smaller side (812 sq ft), with medium-sized rooms and standard ceiling heights, so buyers seeking larger accommodation should note the scale. Parking is on-street with no restrictions rather than private off-street parking. EPC C and Council Tax Band B reflect reasonable running costs but energy performance could be improved.
3 bedroom semi-detached house for sale in Moulton Close, Sudbury, Suffolk, CO10 — £300,000 • 3 bed • 1 bath • 817 ft²
3 bedroom semi-detached house for sale in Brundon Lane, Sudbury, CO10 — £340,000 • 3 bed • 1 bath • 742 ft²
3 bedroom semi-detached house for sale in Uplands Road, Sudbury, CO10 — £260,000 • 3 bed • 1 bath • 768 ft²
3 bedroom terraced house for sale in Jubilee Road, Sudbury, CO10 — £270,000 • 3 bed • 2 bath • 1062 ft²
3 bedroom terraced house for sale in Uplands Crescent, Sudbury, Suffolk, CO10 — £260,000 • 3 bed • 1 bath • 889 ft²
3 bedroom semi-detached house for sale in Waldingfield Road, Sudbury, CO10 — £325,000 • 3 bed • 2 bath • 1020 ft²






















































