**Standout Features:**
- Detached, character-filled country home
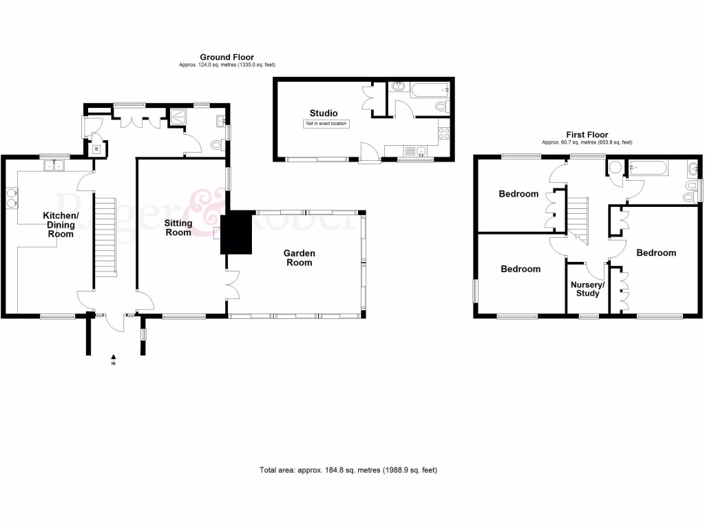
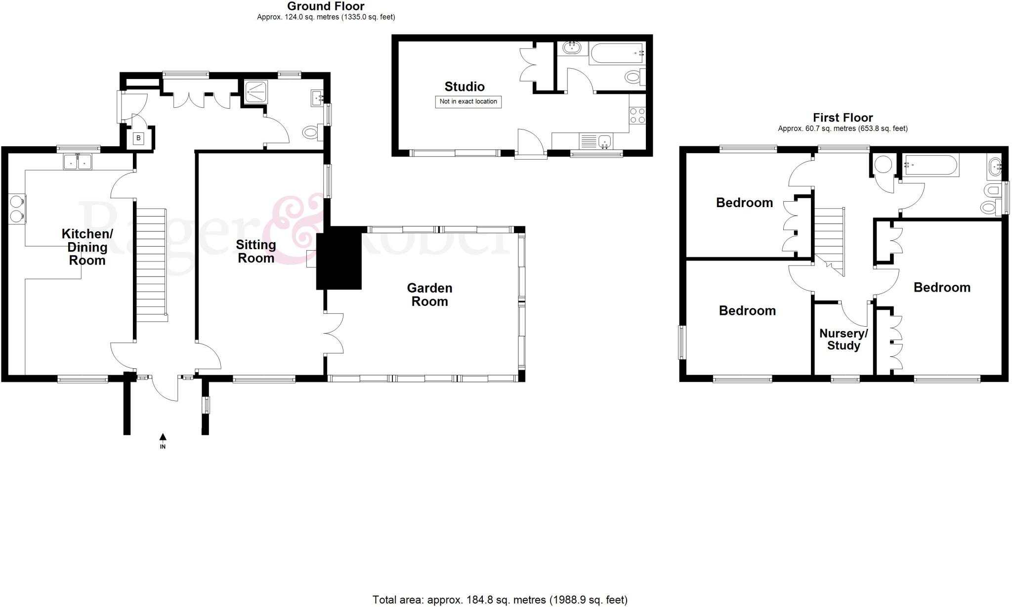
- Spacious 21' x 12' refitted kitchen/dining room
- 18' x 13' garden room with potential for beautiful views
- Versatile studio/annex space ideal for office or guests
- Located within South Downs National Park
- Set in a picturesque village with low crime rates and ample amenities
**Summary Description:**
Discover the enchanting Holly Tree House, a newly renovated detached home nestled in the serene Cuckmere valley. This spacious residence boasts a large entrance hall, a beautifully refitted kitchen/dining room, and a cozy sitting room featuring charming cottage elements like exposed beams and a wood-burning stove. The heart of the home flows effortlessly into a sunlit 18' x 13' garden room, creating an inviting space for gatherings or simply enjoying the expansive garden views.
With three generous bedrooms and a versatile study/nursery, this property caters perfectly to families or those needing flexible space. Additionally, a separate studio room with bathroom facilities opens up numerous possibilities—imagine a private office or guest suite. Situated in a thriving village dotted with local amenities, including a popular pub and stunning countryside, this home offers both tranquility and community charm. Don’t miss your chance to embrace country living at its finest; explore Holly Tree House today and envision the future filled with comfort, exclusivity, and recreational bliss in the South Downs National Park.
4 bedroom detached house for sale in Wilderness Lane, Hadlow Down, TN22 — £675,000 • 4 bed • 2 bath • 1528 ft²
3 bedroom detached house for sale in East Hoathly, Lewes, East Sussex, BN8 — £645,000 • 3 bed • 2 bath • 1518 ft²
3 bedroom detached house for sale in Eatenden Lane, Mountfield, TN32 — £700,000 • 3 bed • 2 bath • 1746 ft²
5 bedroom detached house for sale in Cade Street, Heathfield, TN21 — £1,100,000 • 5 bed • 4 bath • 3280 ft²
3 bedroom detached house for sale in Stone Quarry Road, Chelwood Gate, RH17 — £695,000 • 3 bed • 1 bath • 1305 ft²
3 bedroom detached house for sale in Lewes Road, Blackboys, Uckfield, East Sussex, TN22 — £850,000 • 3 bed • 2 bath • 1500 ft²






































































































