Quiet street, handy for Alexandra Palace station and local schools.
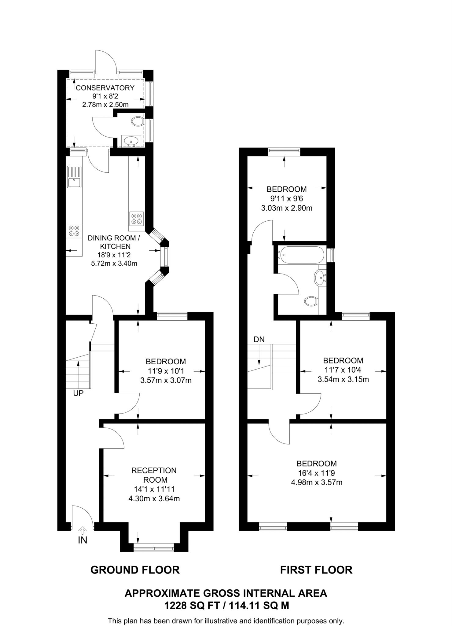
- Victorian semi-detached with period bay window and brick facade
- Modern kitchen with bay window and space for dining
- Main bathroom plus separate guest WC
- Three good-size bedrooms; dining room can be fourth bedroom
- Private rear garden; plot is small
- Freehold tenure; c.1,228 sq ft total floor area
- Built 1900–1929; solid brick walls, likely no cavity insulation
- Local crime level above average; check local safety data
Set on a quiet residential street in Wood Green, this Victorian semi offers three good-size bedrooms, a front reception and a separate dining room that can serve as a fourth bedroom. The modern kitchen with a bay window provides informal dining space and connects directly to a private rear garden. The house has been well presented throughout, combining period character with contemporary finishes.
Practical details suit family life: a main bathroom plus a guest WC, gas boiler central heating and double glazing. The freehold tenure and an overall footprint of around 1,228 sq ft give scope for adapting living space to suit growing needs. Alexandra Palace station and local shops are within easy walking distance, and several highly rated primary and secondary schools are nearby.
Be aware of a few material considerations: the property sits on a small plot and is built as solid brick with no known cavity insulation, which may affect energy efficiency and running costs. Crime in the area is above average, so prospective buyers should check local safety data. Overall, the house is a practical, characterful family home with scope for further improvement and energy upgrades.
3 bedroom house for sale in Ranelagh Road, London, N22 — £895,000 • 3 bed • 1 bath • 976 ft²
3 bedroom house for sale in Dagmar Road, Wood Green, London, N22 — £1,025,000 • 3 bed • 1 bath • 1283 ft²
3 bedroom terraced house for sale in Woodside Road, London, N22 — £900,000 • 3 bed • 1 bath • 1224 ft²
3 bedroom terraced house for sale in Cranbrook Park, London, N22 — £600,000 • 3 bed • 1 bath • 1248 ft²
4 bedroom terraced house for sale in Forfar Road, London, N22 — £750,000 • 4 bed • 3 bath • 1425 ft²
3 bedroom terraced house for sale in Grainger Road N22, Tottenham, London, N22 — £575,000 • 3 bed • 1 bath • 1089 ft²






















































































































