M1 5TF - 2 bed foundry two bedroom in Lower Chatham Street, M1 5TF

View on Property Piper

2 bedroom apartment for sale in The Foundry, 2a Lower Chatham Street, Manchester, M1

Summary - THE FOUNDRY, 2A APARTMENT 4 LOWER CHATHAM STREET MANCHESTER M1 5TF

2 bed 2 bath Apartment

Chain-free investment near Manchester University with parking and balcony.
Generous 797 sq ft two-bedroom ground-floor apartment
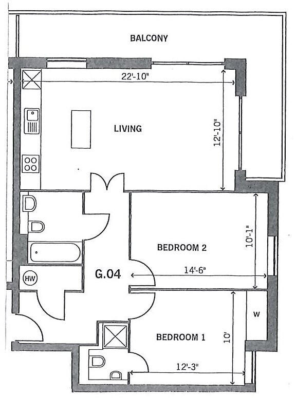
A spacious two-bedroom ground-floor apartment in The Foundry, offered chain free and presented as an investment purchase. The L-shaped reception flows into a generous open-plan lounge/dining/kitchen with two sets of patio doors and a large wrap-round balcony overlooking a secure communal courtyard. The layout includes a principal bedroom, a second bedroom with ensuite, and a separate bathroom — all within approximately 797 sq ft, built in 2002.

Positioned moments from Oxford Road station and Manchester University, this property suits buy-to-let investors or parents buying for students. It includes one secure off-street parking space and benefits from double glazing and an electric heating system. The long lease (circa 976 years remaining) and modest ground rent (£150) are positive tenure features for long-term ownership.

Buyers should note planned fire safety remedial works and that a satisfactory EWS1 form is not currently in place. The original developer, Taylor Wimpey, has provided a letter of comfort confirming they will fund the required works; however, mortgage applicants must confirm acceptability with their lender or broker. Service charge details and full lease documentation should be checked as part of purchase due diligence.

Overall this is a practical, centrally located investment with strong student and commuter rental appeal. The apartment’s modern fit-out, secure parking and balcony add tenant appeal, while the outstanding fire-safety paperwork is a material issue to resolve before some lenders will proceed.

Property Details

Image Descriptions

Floorplan Description

Rooms

Textual Property Features

Target Audience

AI Tags

Detected Visual Features

Nearby Schools

Nearest Bars And Restaurants

,,,,}

Nearest General Shops

,,}

Nearest Grocery shops

,,}

Nearest Supermarkets

,,}

Nearest Religious buildings

,,}

Nearest Medical buildings

,,,}

Nearest Airports

}

Nearest Leisure Facilities

,,,,}

Nearest Tourist attractions

,,}

Nearest Train stations

,,,,}

Nearest Bus stations and stops

,,,,}

Nearest Hotels

,,}

Tags

Local Market Stats

AirBnB Data

Similar Properties

Meta

High Res Images

Compatible Images

Low res Images

Thumbnails

Raw Images

High Res Floorplan Images

Compatible Floorplan Images

Low res Floorplan Images

FloorplanImages Thumbnail

Raw Floorplan Images