Private garden, garage and outbuilding — ideal for downsizers or young families.
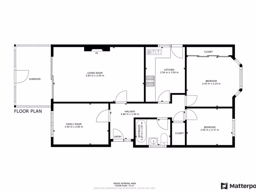
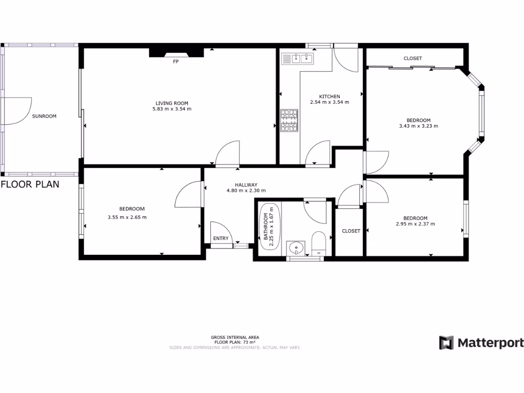
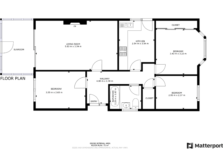
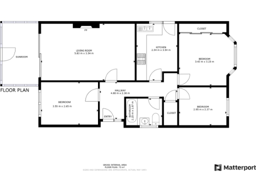
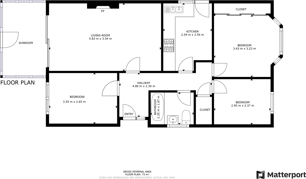
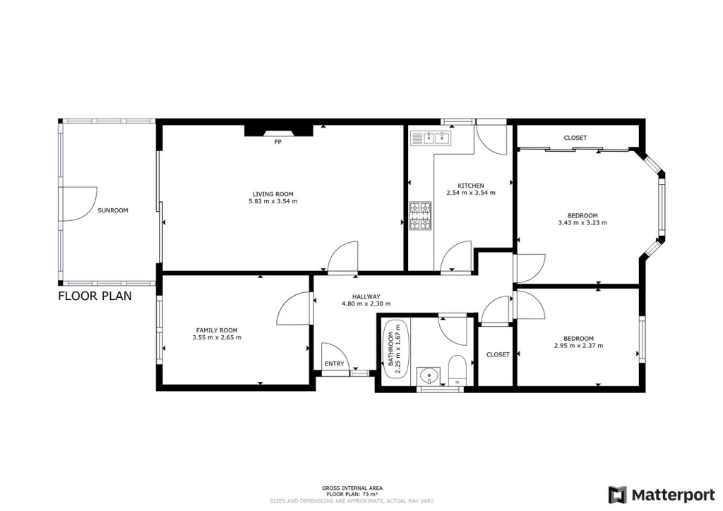
Three bedroom detached bungalow — single-storey living throughout
Set quietly at the end of a cul‑de‑sac in Barnby Dun, this three‑bedroom detached bungalow offers single‑storey convenience and straightforward living in a pleasant semi‑rural setting. The layout centres on a spacious lounge and bright conservatory overlooking a private, enclosed rear garden with gated access onto common land — ideal for easy outdoor living and children or pets to explore.
Practical features include a driveway, detached garage and a useful outbuilding currently suited to a home office, studio or workshop. The kitchen and family bathroom provide everyday functionality, and the property is sold freehold with no onward chain, so a quick move is possible for the right buyer.
Built around 1976–1982 with filled cavity walls and double glazing installed before 2002, the home is well‑constructed but shows its age in places and will suit buyers who appreciate solid bones rather than a newly renovated finish. There is one family bathroom and about 785 sq ft of accommodation — compact but comfortable for downsizers, small families or those seeking ground‑floor living.
Note the property sits in an area with a medium flooding risk and would benefit from continued maintenance and potential modernisation of some fixtures and glazing. Local schools, green space and good transport links to Doncaster add practical appeal for family buyers and those seeking quieter village life with fast broadband and excellent mobile signal.
3 bedroom detached bungalow for sale in Shawfield Close, Barnby Dun, Doncaster, DN3 — £320,000 • 3 bed • 1 bath • 797 ft²
2 bedroom detached bungalow for sale in Mallard Avenue, Barnby Dun, Doncaster, DN3 — £225,000 • 2 bed • 1 bath • 853 ft²
2 bedroom bungalow for sale in Pinehall Road, Barnby Dun, Doncaster, DN3 — £200,000 • 2 bed • 1 bath • 646 ft²
3 bedroom detached bungalow for sale in Dunniwood Avenue, Bessacarr, Doncaster, DN4 — £300,000 • 3 bed • 1 bath • 792 ft²
3 bedroom detached bungalow for sale in Broadwater Drive, Dunscroft, Doncaster, South Yorkshire, DN7 — £265,000 • 3 bed • 2 bath • 1093 ft²
3 bedroom detached bungalow for sale in Belfry Gardens, Doncaster, DN4 — £290,000 • 3 bed • 2 bath • 990 ft²


























































































