MK7 8DH - 2 bed compact two bedroom home in Mendelssohn Grove, MK7 8DH

View on Property Piper

2 bedroom cluster house for sale in Mendelssohn Grove, Milton Keynes, Buckinghamshire, MK7

Summary - 17 MENDELSSOHN GROVE BROWNS WOOD MILTON KEYNES MK7 8DH

2 bed 1 bath Cluster House

Affordable starter home with parking, garden and good transport links.
Chain free — ready for straightforward purchase
This compact two-bedroom cluster house in Browns Wood offers an affordable, chain-free entry to Milton Keynes living. At 495 sq ft it’s well suited to first-time buyers or couples seeking low-maintenance accommodation close to local green space and good schools. The property includes an allocated parking space, a small garden with a timber shed, and good broadband and mobile connectivity.

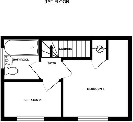
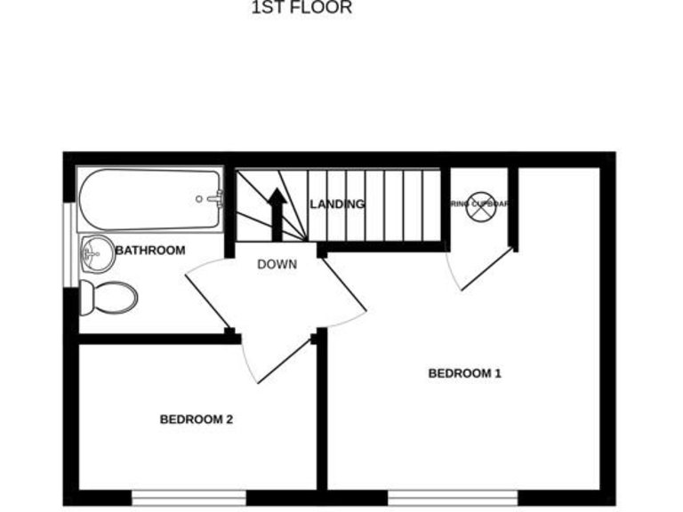
The ground floor provides a practical layout with a living room and a dual-aspect kitchen. Upstairs are two bedrooms and a bathroom; bedroom one benefits from an airing cupboard. Heating is via electric storage heaters and the EPC is rated D — buyers should expect running costs higher than gas-heated homes. The roof requires maintenance and the double glazing installation date is unknown.

Set within an established 1980s development, the home sits in a quiet, low-crime neighbourhood with easy access to redways, Caldecotte Lake and local schools rated Good. Flooding risk in the area is assessed as medium, so buyers should factor insurance and any mitigation into their plans.

Being freehold and offered with no upper chain, the house is ready for a straightforward purchase. The property presents sensible scope for cosmetic updating and modest improvements to heating and roof works, which could enhance comfort and value for a buyer prepared to invest.

Property Details

Image Descriptions

Floorplan Description

Rooms

Textual Property Features

Target Audience

AI Tags

Detected Visual Features

EPC Details

Nearby Schools

Nearest Bars And Restaurants

,,,,}

Nearest General Shops

,,}

Nearest Grocery shops

,,}

Nearest Supermarkets

,,}

Nearest Religious buildings

,,}

Nearest Medical buildings

,,,}

Nearest Airports

}

Nearest Leisure Facilities

,,,,}

Nearest Tourist attractions

,,}

Nearest Train stations

,,,,}

Nearest Bus stations and stops

,,,,}

Nearest Hotels

,,}

Tags

Local Market Stats

Similar Properties

Meta

High Res Images

Compatible Images

Low res Images

Thumbnails

Raw Images

High Res Floorplan Images

Compatible Floorplan Images

Low res Floorplan Images

FloorplanImages Thumbnail

Raw Floorplan Images