CW5 5LH - 3 bedroom cottage for sale in Marsh Lane, Nantwich, CW5

View on Property Piper

3 bedroom cottage for sale in Marsh Lane, Nantwich, CW5

Summary - 32 MARSH LANE NANTWICH CW5 5LH

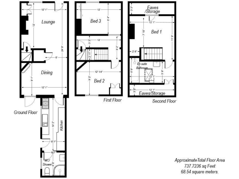
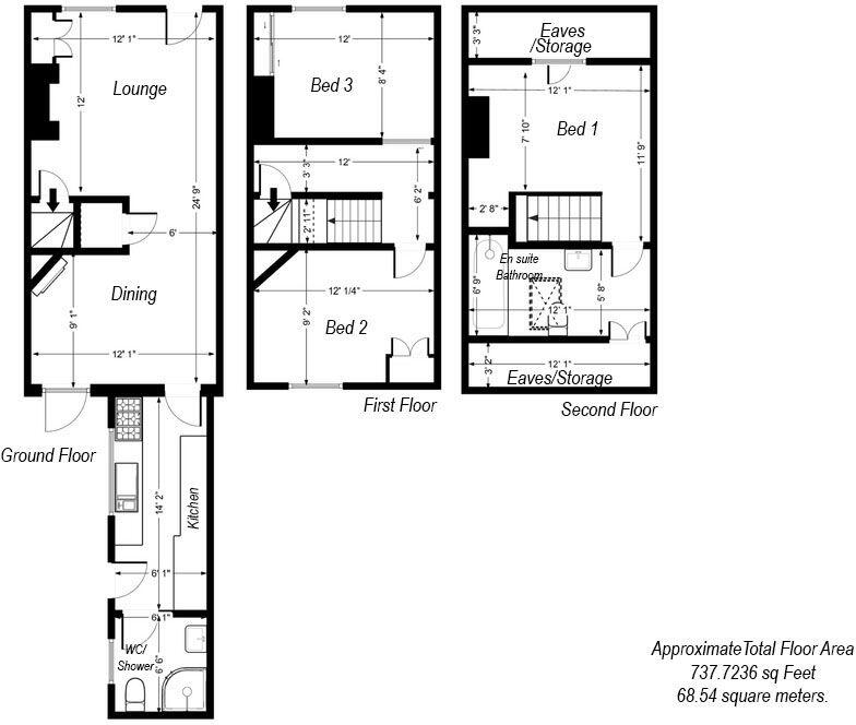
3 bed 3 bath Cottage

**Standout Features:**

- Charming Victorian terraced cottage built in 1850
- 3 double bedrooms, including a master with en-suite
- Cozy living room with a log burner and exposed beams
- Private, leafy garden with elevated decking and York stone patio
- Off-street parking available
- Chain-free with a Freehold tenure
- Close proximity to Nantwich town and countryside

**Summary:**

Welcome to "Wisteria Cottage," a picturesque Victorian terraced home that seamlessly blends rustic charm with modern comfort. Spanning three floors, this enchanting cottage features three spacious double bedrooms, with the top-floor master suite boasting an en-suite bathroom. The heart of the home is a cozy living area adorned with a traditional log burner and exposed wooden beams, exuding warmth and character perfect for family gatherings or quiet evenings.

Step outside to discover your own private sanctuary—a secluded garden complete with elevated decking and a York stone patio, ideal for alfresco dining and enjoying the tranquility of your surroundings. Located in a self-sufficient retirement area, this cottage offers the best of both worlds; enjoy the peace of the countryside just moments away from the vibrant amenities of Nantwich town.

A recent comprehensive home buyer’s survey is available, reassuring potential buyers of the property's well-maintained condition. This charming retreat is an excellent opportunity for families or first-time buyers looking for comfort and character in a growing community. Don’t miss your chance to make this quaint cottage your own; it's ready for you to move in, with no onward chain!

Property Details

Brochure Descriptions

Image Descriptions

Floorplan Description

Rooms

Textual Property Features

Detected Visual Features

EPC Details

Nearby Schools

Nearest Bars And Restaurants

,,,,}

Nearest General Shops

,,}

Nearest Grocery shops

,,}

Nearest Supermarkets

,,}

Nearest Religious buildings

,,}

Nearest Medical buildings

,,,}

Nearest Leisure Facilities

,,,,}

Nearest Tourist attractions

,,}

Nearest Train stations

,,,,}

Nearest Bus stations and stops

,,,,}

Nearest Hotels

,,}

Tags

Local Market Stats

AirBnB Data

Similar Properties

Meta

High Res Images

Compatible Images

Low res Images

Thumbnails

Raw Images

High Res Floorplan Images

Compatible Floorplan Images

Low res Floorplan Images

FloorplanImages Thumbnail

Raw Floorplan Images