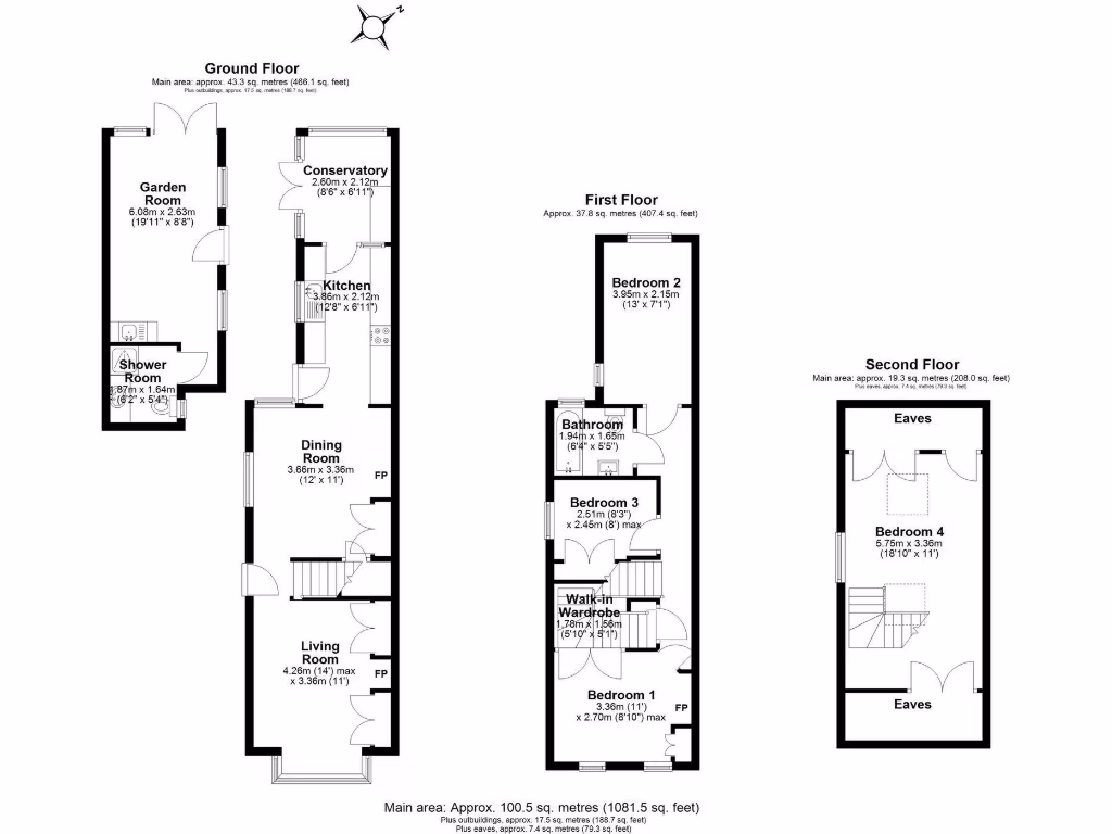
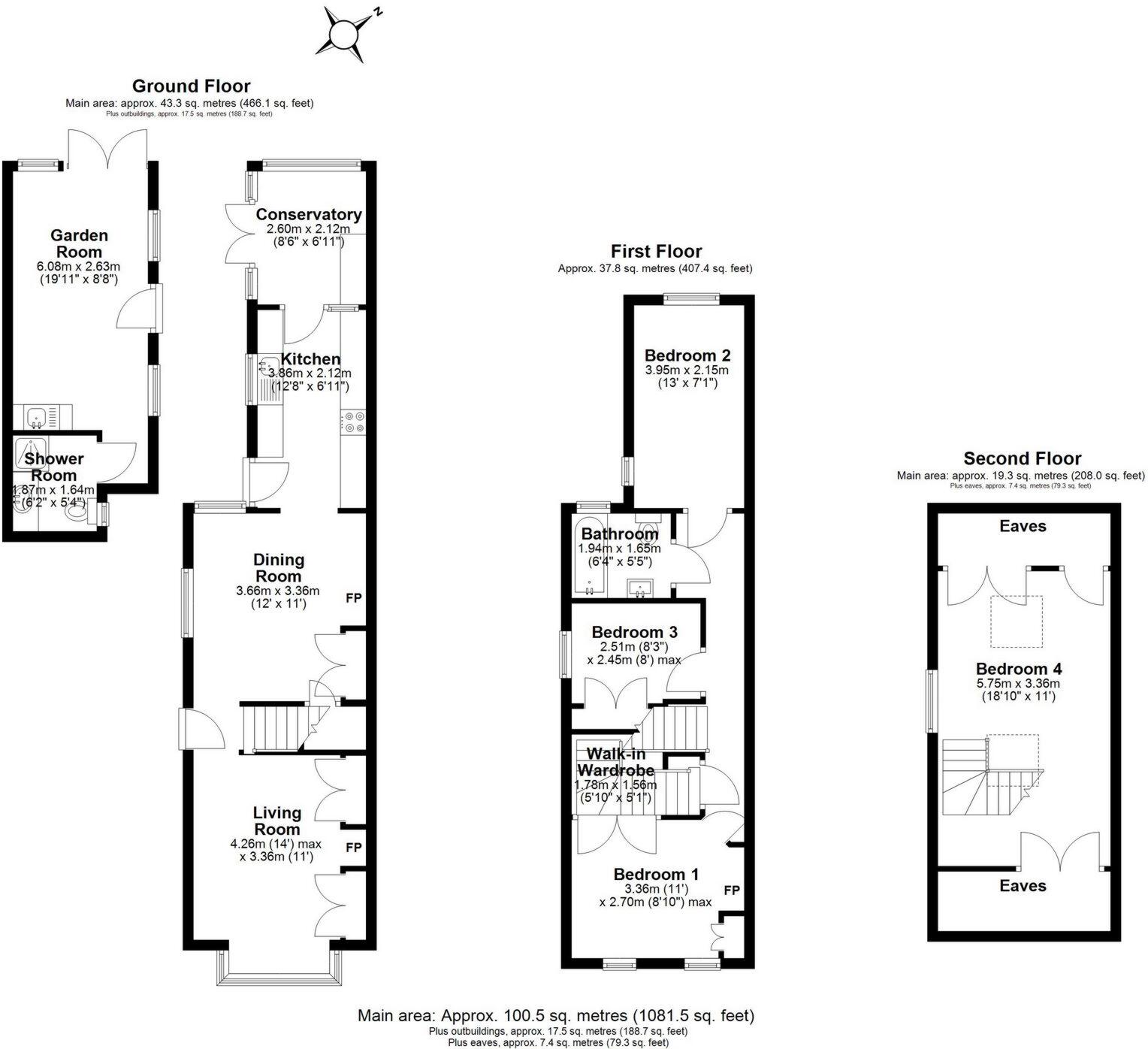
Spacious Victorian family home with 75ft garden and parking, moments from the Central Line.
Approx. 1,350 sq ft of living space
Spacious Victorian semi-detached house on a generous plot in a sought-after Buckhurst Hill location. The property combines original period details — bay windows, fireplaces and alcove shelving — with contemporary upgrades including a modern fitted kitchen, conservatory/utility room and a useful loft room. At approximately 1,350 sq ft the house will suit growing families who value proximity to good schools and the Central Line (under five minutes’ walk).
The large 75ft rear garden and substantial outbuilding (with shower room) provide excellent scope for a home studio, workshop or extended living space. Off-street parking for 3–4 cars (front and rear access) and easy access to Queens Road shops and nearby green spaces add to the everyday convenience.
Buyers should note practical considerations: the property has a single family bathroom, an EPC rating of D57, and cavity walls that are assumed to have no added insulation. The house was constructed between 1930–1949, so while well maintained, further modernisation or insulating work may be desirable to improve energy efficiency. Council Tax band D applies.
4 bedroom semi-detached house for sale in Princes Road, Buckhurst Hill, IG9 — £1,350,000 • 4 bed • 3 bath • 2187 ft²
2 bedroom end of terrace house for sale in Alfred Road, Buckhurst Hill, IG9 — £650,000 • 2 bed • 1 bath • 723 ft²
4 bedroom end of terrace house for sale in Osborne Road, Buckhurst Hill, IG9 — £1,150,000 • 4 bed • 2 bath • 2171 ft²
4 bedroom semi-detached house for sale in Princes Road, Buckhurst Hill, IG9 — £1,150,000 • 4 bed • 3 bath • 2046 ft²
4 bedroom semi-detached house for sale in Stradbroke Grove, Buckhurst Hill, Essex, IG9 — £1,200,000 • 4 bed • 1 bath • 1665 ft²
3 bedroom detached house for sale in Stradbroke Grove, Buckhurst Hill, IG9 — £1,000,000 • 3 bed • 1 bath • 1300 ft²


























































































































