**Standout Features:**
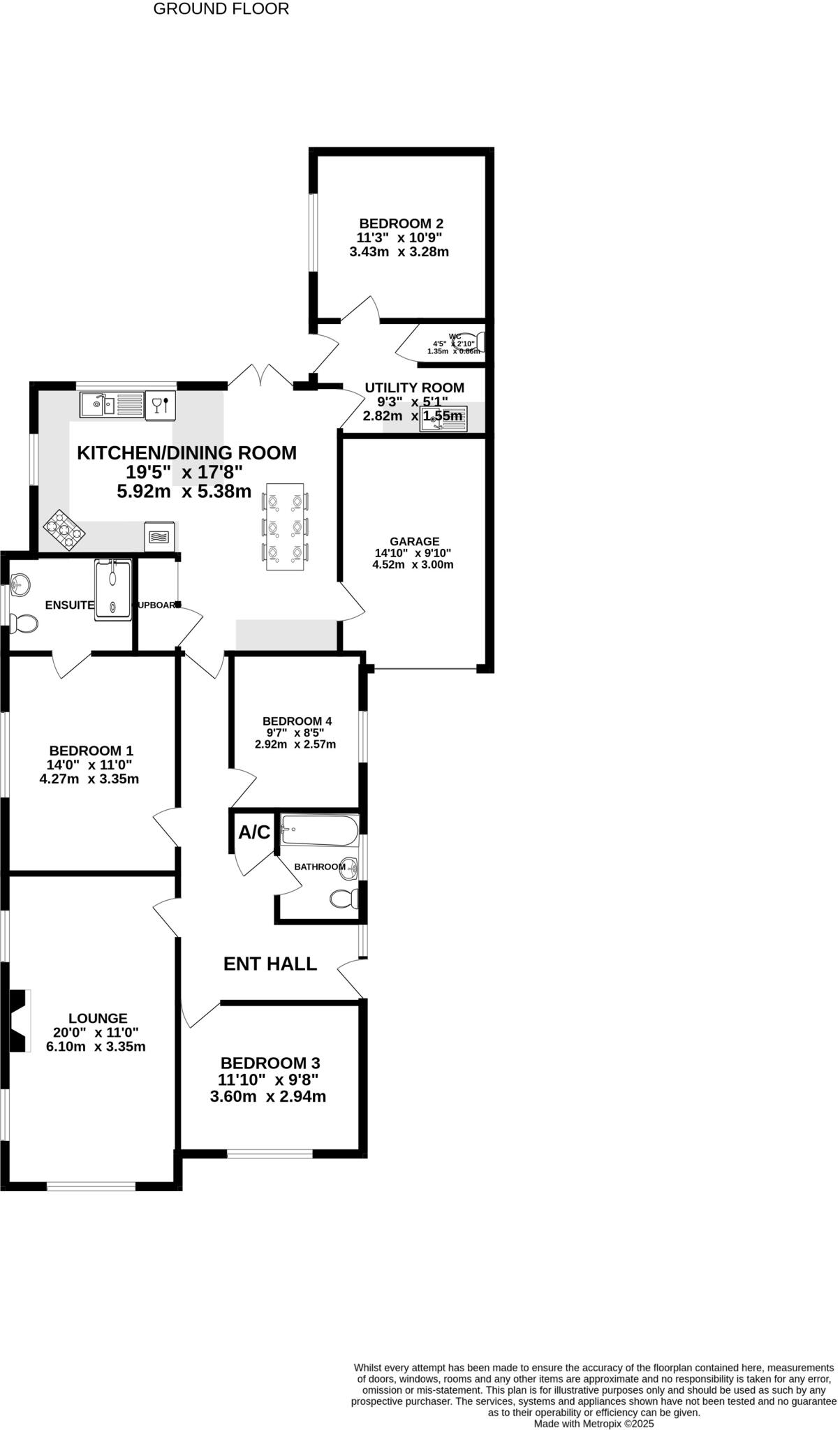
- Substantial 4-bedroom detached bungalow
- Stunning countryside views
- Spacious L-shaped kitchen/dining area
- Woodburning stove in the sitting room
- Potential for annexe conversion
- Ample parking and integral garage
- Generous rear and front gardens
**Summary:**
Experience all the comforts of rural living in this substantial 4-bedroom detached bungalow nestled at the end of a peaceful cul-de-sac with captivating countryside views. Ideal for families or investors seeking space and potential, the property boasts a spacious L-shaped kitchen and dining area perfect for entertaining, along with a cozy sitting room featuring a charming woodburning stove.
Each of the four double bedrooms offers ample space, with the principal bedroom benefiting from a luxurious en-suite bathroom. The expansive garden provides a tranquil retreat, and the potential for an annexe conversion presents further opportunity for customization. With a garage and additional parking, convenience is at your fingertips.
Located in the welcoming village of Pimperne, residents have access to essential amenities, good local schools, and a regular bus service to nearby Blandford Forum. Although the property is generally in good condition, it may require some minor updates to fit personal tastes. Don’t miss out on this unique opportunity to own a beautiful and expansive bungalow in a desirable location!







































































































