Bright three-bed home with garden and EV charging, ideal for first-time buyers.
Open-plan kitchen with island and abundant natural light
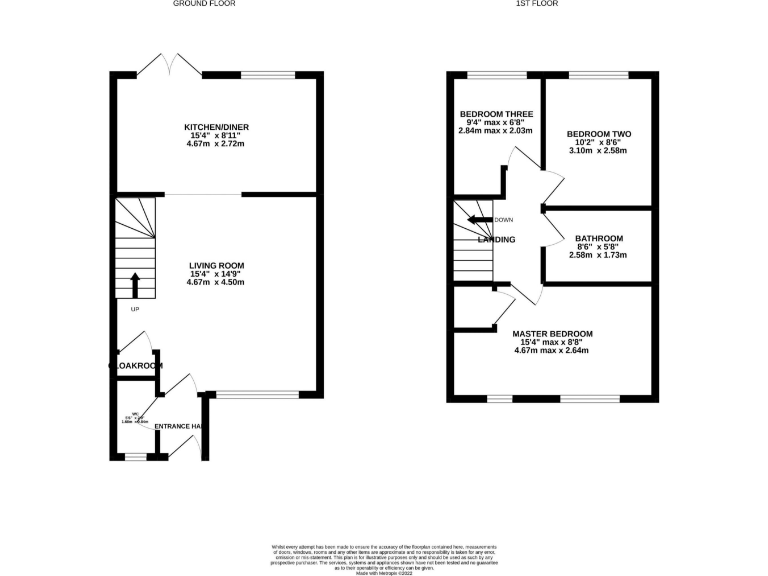
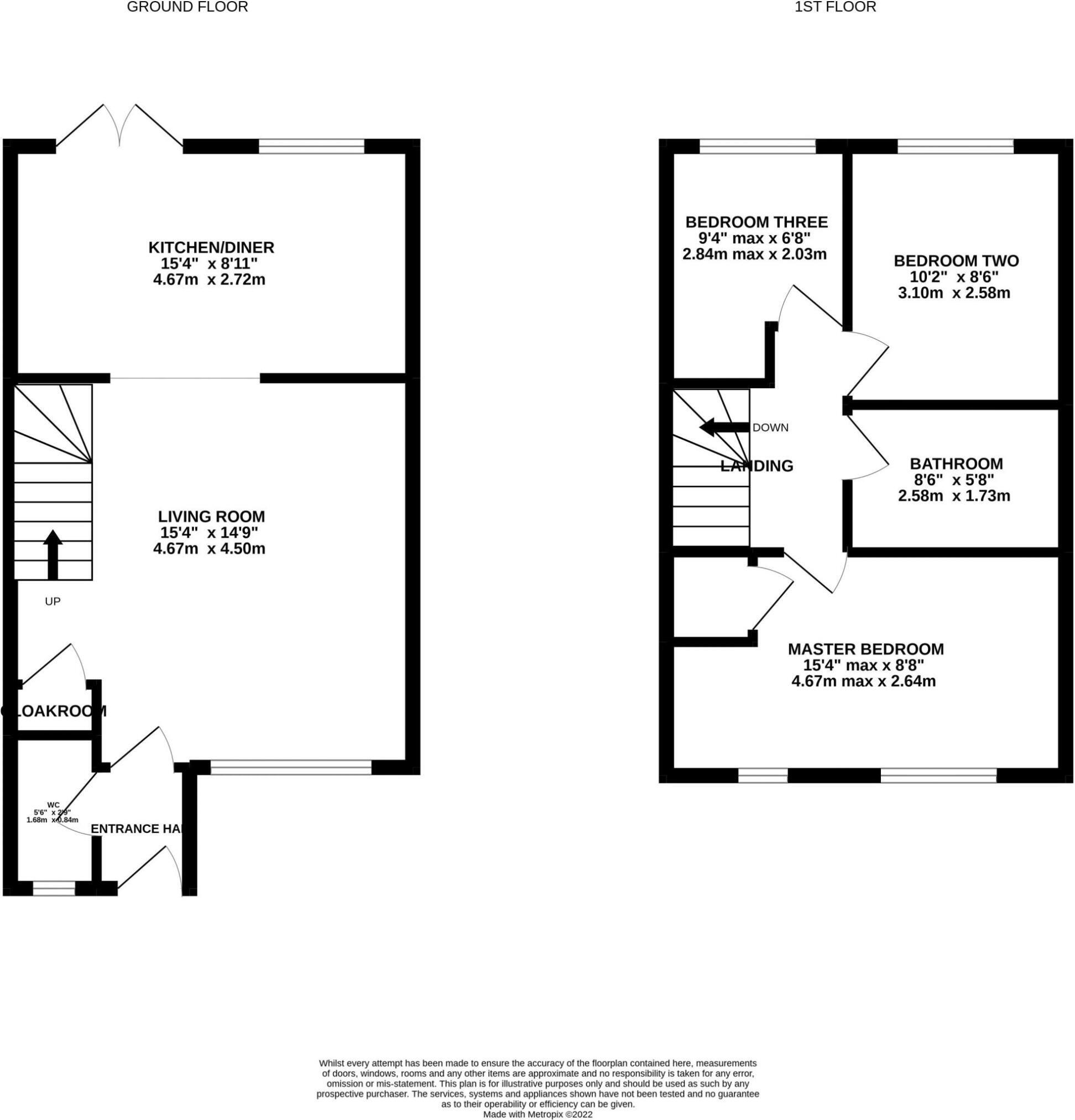
Bright, practical living is the selling point of this three-bedroom semi-detached home on a large corner plot in Stoke-on-Trent. An open-plan kitchen with island and direct garden access creates easy family meals and informal entertaining, while the reception room’s elegant fireplace and wood floors provide a comfortable living hub. Dedicated off-street parking and an EV charging point add everyday convenience.
The property will suit first-time buyers or young families seeking a modern-feeling home in a quiet, well-served neighbourhood. Nearby good primary and secondary schools, fast broadband, excellent mobile signal and reliable public transport make daily life straightforward. The garden and corner plot offer scope for outdoor living, extension (subject to permissions) or landscaping to increase usable space.
Buyers should note practical considerations: the home is compact at around 718 sq ft, has electric storage heating and an EPC rating of D, and the double glazing was fitted before 2002. These features may mean higher running costs than newer, gas-heated homes and could warrant future upgrades.
Overall this is a tidy, contemporary-feeling house on a decent plot in an affluent, low-crime area. It offers immediate liveability with sensible improvement potential for buyers prepared to update heating or insulation over time.
3 bedroom semi-detached house for sale in Brompton Drive, Stoke-on-Trent, Staffordshire, ST2 — £237,500 • 3 bed • 1 bath
3 bedroom semi-detached house for sale in Norton Lane, Stoke-on-Trent, Staffordshire, ST6 — £235,000 • 3 bed • 2 bath
3 bedroom semi-detached house for sale in Ash Bank Road Werrington, ST2 9EE., ST2 — £320,000 • 3 bed • 2 bath • 1407 ft²
3 bedroom semi-detached house for sale in Westonfields Drive, Westonfields, Stoke-on-Trent, ST3 — £210,000 • 3 bed • 1 bath • 871 ft²
3 bedroom semi-detached house for sale in Delaney Drive, Stoke-on-Trent, Staffordshire, ST3 — £220,000 • 3 bed • 1 bath • 679 ft²
3 bedroom semi-detached house for sale in Woodall Street, Stoke On Trent, ST1 5ED, ST1 — £190,000 • 3 bed • 2 bath • 829 ft²






































































