Ready-to-move three-bed starter with parking and garage, near schools and amenities.
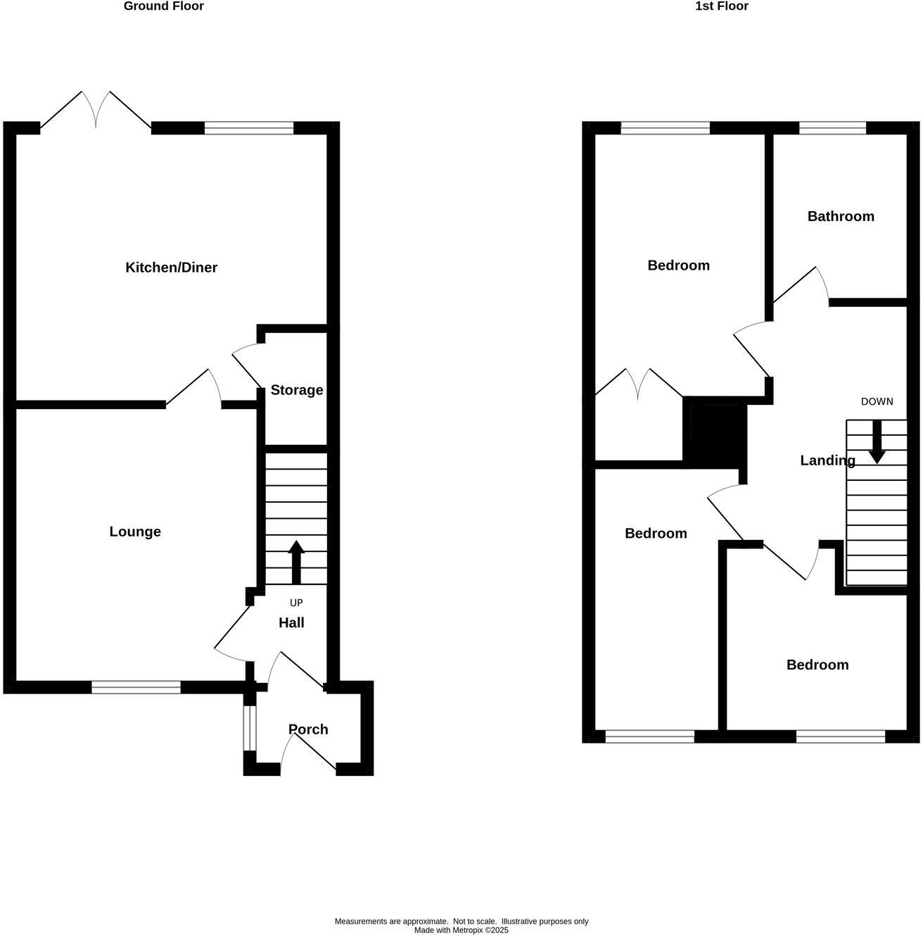
Three bedrooms, all with fitted wardrobes and storage
Attractive lounge and practical kitchen-diner layout
Driveway plus single garage; landscaped low-maintenance rear garden
Gas central heating and UPVC double glazing throughout
Small overall footprint — approx. 786 sq ft
EPC D; further energy improvements likely beneficial
Local area flagged as deprived with higher crime levels
Flood-risk data inconsistent; buyer should verify with local authority
A well-presented three-bedroom mid-terrace offered as a superb starter home in a quiet Gornal cul-de-sac. The lounge and kitchen-diner provide practical living space, while three bedrooms (each with fitted wardrobes) suit a young family or first-time buyer seeking move-in-ready accommodation. The property benefits from gas central heating, UPVC double glazing and an open aspect to the rear, plus driveway parking and a single garage.
The rear garden has been landscaped and is low maintenance, and the deceptively spacious layout (approximately 786 sq ft) makes efficient use of the footprint. Local amenities, several well-regarded secondary schools and Gornal Village are all within walking distance, and mobile and broadband coverage are strong — useful for home working and streaming.
Notable considerations: the area scores as deprived with higher local crime levels, and the EPC rating is D. There is some uncertainty in flood information supplied (one source flags a >3.3% annual chance; another marks no risk), so buyers should verify flood status. Constructed around 1976–82, the house has cavity walls with partial insulation assumed — further energy improvements may be beneficial over time.
Overall this home suits first-time buyers or young families looking for an affordable, ready-to-live-in property with parking and a garage, but it comes with local safety and energy-efficiency factors to weigh before purchase.
2 bedroom terraced house for sale in Rubens Close, Upper Gornal, DY3 — £209,950 • 2 bed • 1 bath • 614 ft²
3 bedroom semi-detached house for sale in Lawnswood Road, Lower Gornal, DY3 — £239,950 • 3 bed • 1 bath • 776 ft²
3 bedroom semi-detached house for sale in Robert Street, Lower Gornal, DY3 — £255,000 • 3 bed • 1 bath • 818 ft²
2 bedroom end of terrace house for sale in Goodrich Mews, Upper Gornal, DY3 — £189,950 • 2 bed • 1 bath • 603 ft²
3 bedroom detached house for sale in Loweswater Drive, Lower Gornal, Dudley, DY3 — £250,000 • 3 bed • 1 bath • 754 ft²
3 bedroom semi-detached house for sale in Askew Close, Upper Gornal, DY3 — £209,950 • 3 bed • 1 bath • 713 ft²






























































