GL50 2FA - 2 bed modern two bedroom house in Casino Place, GL50 2FA

View on Property Piper

2 bedroom detached house for sale in Casino Place, Cheltenham, Gloucestershire, GL50

Summary - 53, Casino Place GL50 2FA

2 bed 1 bath Detached

Low-maintenance home with a garden office near Tivoli and Montpellier.
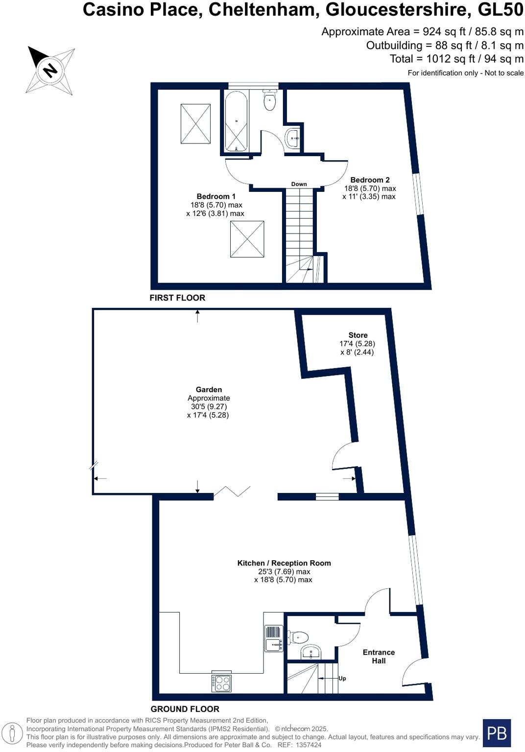
- Approximately 25'3 x 18'8 open-plan kitchen/living space
- Two double bedrooms with a modern family bathroom
- Private paved garden with summer house/garden office
- Built circa 2019 with contemporary integrated appliances
- Gated access to a private lane; close to shops and schools
- Small plot and no garage or large lawn space
- Single bathroom only; compact footprint at 924 sq ft
- Fast broadband, excellent mobile signal, affordable council tax
A modern two-bedroom house occupying a compact plot in one of Cheltenham’s most convenient pockets. The ground floor is dominated by a light-filled, open-plan living/kitchen/dining area (about 25'3 x 18'8) with bi-fold doors onto a low-maintenance paved garden and a separate garden office/summer house — a useful work-from-home space. Built around 2019, the property's contemporary finishes and integrated appliances mean it's largely move-in ready for buyers seeking a turn-key urban base.

Upstairs provides two generous double bedrooms and a single modern bathroom with a shower over the bath. Practical details include gas central heating with boiler and radiators, fast broadband and excellent mobile signal — all helpful for commuting professionals or those working from home. The house sits off a private, gated lane with close proximity to Tivoli, Montpellier, Bath Road amenities and several highly rated schools, making local shops, cafés and transport easy to reach on foot.

Buyers should note the small plot and absence of off-street garage or large rear lawn — the outdoor space is paved for low maintenance. There is only one bathroom, which may be a limitation for some households, and the property is compact at about 924 sq ft. Overall, this is a modern, well-appointed home offering convenience, low maintenance living and good rental or first-home potential in a very affluent area.

Property Details

Image Descriptions

Floorplan Description

Rooms

Textual Property Features

Target Audience

AI Tags

Detected Visual Features

EPC Details

Nearby Schools

Nearest Bars And Restaurants

,,,,}

Nearest General Shops

,,}

Nearest Grocery shops

,,}

Nearest Supermarkets

,,}

Nearest Religious buildings

,,}

Nearest Medical buildings

,,,}

Nearest Leisure Facilities

,,,,}

Nearest Tourist attractions

,,}

Nearest Train stations

,,,,}

Nearest Bus stations and stops

,,,,}

Nearest Hotels

,,}

Tags

Local Market Stats

AirBnB Data

Similar Properties

Meta

High Res Images

Compatible Images

Low res Images

Thumbnails

Raw Images

High Res Floorplan Images

Compatible Floorplan Images

Low res Floorplan Images

FloorplanImages Thumbnail

Raw Floorplan Images