Value‑add mixed use with planning upside near the seafront.
Freehold mixed‑use on Margate High Street, short walk to beach
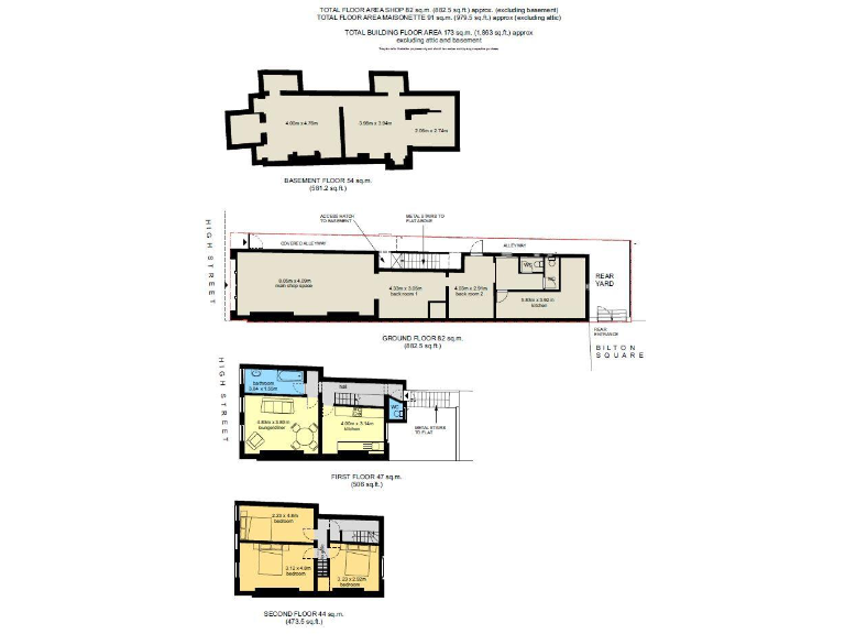
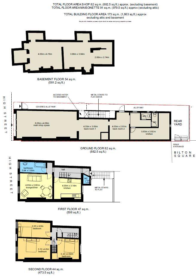
A rare mixed‑use freehold on Margate High Street with an 82 sqm ground-floor retail area and a two‑storey residential flat above. The property sits on a busy high street a short walk from the beach, delivering strong passing footfall and good visibility for a trading business. Planning permission exists (ref F/TH/19/1578) for development in the airspace above, offering scope to increase value through extension or conversion subject to approvals.
The upper dwelling will be sold with a tenant in situ; the current ground-floor commercial tenant is due to vacate in October 2025, creating either an owner‑occupier business opportunity or vacant possession for a new lease. The building is Victorian, mid‑terrace, and substantial in overall size, giving clear potential for refurbishment and reconfiguration to suit investor or operator needs.
Material considerations are set out plainly. The local area is classified as very deprived with high crime and a transitional neighbourhood demographic; the immediate market is rental‑driven and constrained. The property likely has solid brick walls with little insulation and will require updating to modern standards (heating is mains gas boiler and radiators; double glazing was installed post‑2002). Plot size is small and some works may be needed internally to maximise the opportunity.
For investors or commercial operators comfortable working in regeneration locations, this is a value‑add opportunity with planning upside and strong street exposure. Buyers should factor in refurbishment costs, security and management needs for a tenancy in a higher‑risk area, and the timing of the commercial vacancy when modelling returns.
9 bedroom hospitality facility for sale in High Street, Margate, Kent, CT9 — £1,000,000 • 9 bed • 1 bath • 10000 ft²
High street retail property for sale in Marine Gardens, Margate, Kent, CT9 — £165,000 • 1 bed • 1 bath • 474 ft²
5 bedroom terraced house for sale in Arthur Road, Margate, Kent, CT9 — £425,000 • 5 bed • 2 bath • 1785 ft²
8 bedroom terraced house for sale in Grosvenor Place, MARGATE, Kent, CT9 — £600,000 • 8 bed • 1 bath • 2083 ft²
4 bedroom terraced house for sale in Eaton Road, Margate, Kent, CT9 — £350,000 • 4 bed • 3 bath • 1660 ft²
High street retail property for sale in 33 High Street, Ramsgate, Kent, CT11 — £555,000 • 1 bed • 1 bath • 5005 ft²


















































































































