Three-bedroom end-terrace with driveway and garden — renovation opportunity for families or investors.
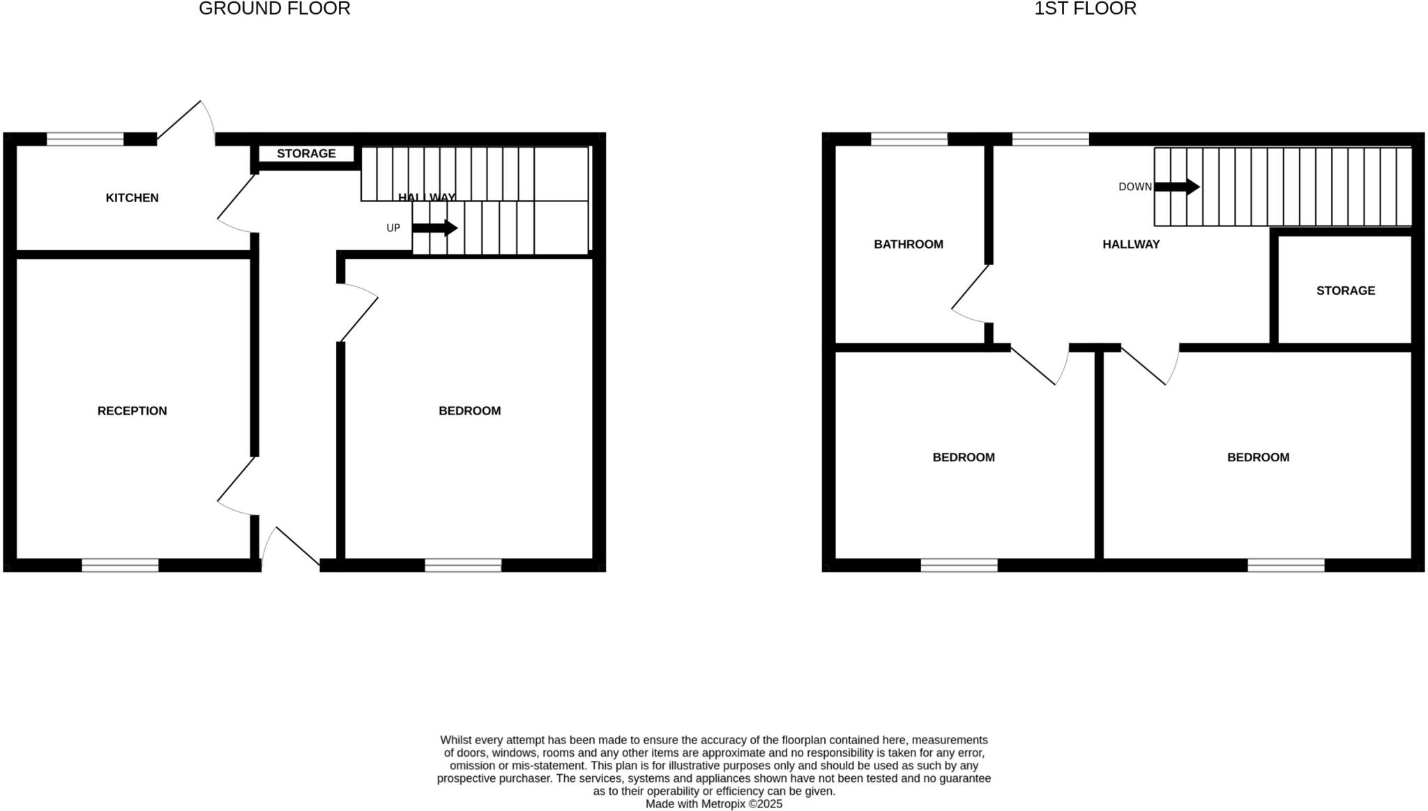
Three double bedrooms, living room, kitchen and shower room
Paved driveway and garage provide off-street parking and storage
Enclosed rear garden — tidy-up and landscaping required
Requires modernization: exterior paintwork and internal finishes worn
EPC rating C; freehold tenure; no flooding risk
Excellent mobile signal and fast broadband for home working
Local amenities, schools, buses and playgrounds within walking distance
Area described as very deprived — impacts resale prospects
A three-bedroom end-of-terrace on Balgowan Avenue priced to reflect its renovation potential. The house offers practical family accommodation: living room, three double bedrooms, kitchen and a shower room, with off-street parking and an enclosed rear garden. Fast broadband and excellent mobile signal make the home immediately usable for remote working or online schooling.
The property is freehold and sits in a residential area with nearby schools, bus links, playgrounds and local shops. A paved driveway and garage provide useful storage and parking; council tax is described as cheap, and there is no flooding risk. EPC rating is C.
The house needs modernisation throughout — external paintwork is worn, interior walls show scuffs, and some finishes require updating. The rear garden and general tidy-up present a straightforward DIY or refurbishment project for a buyer seeking value-add. The area is described as very deprived, which may affect long-term resale values but supports the current price point and potential rental demand for investors.
This home will suit young families or first-time buyers prepared to invest time and money into improvements, or investors seeking a hands-on renovation project in a convenient Dundee location.
3 bedroom end of terrace house for sale in Haldane Terrace, Dundee, DD3 — £105,000 • 3 bed • 1 bath
3 bedroom terraced house for sale in Balbeggie Terrace, Dundee, DD4 — £135,000 • 3 bed • 1 bath • 1034 ft²
3 bedroom end of terrace house for sale in Balerno Street, Dundee, DD4 — £140,000 • 3 bed • 1 bath • 958 ft²
3 bedroom terraced house for sale in Balunie Drive, Dundee, DD4 — £110,000 • 3 bed • 1 bath • 618 ft²
3 bedroom end of terrace house for sale in Balerno Street, Dundee, DD4 — £90,000 • 3 bed • 1 bath • 958 ft²
2 bedroom terraced house for sale in Balunie Terrace, Dundee, DD4 — £120,000 • 2 bed • 1 bath • 689 ft²










































