Long private garden, driveway and clear scope to modernise in Standish village.
Two double bedrooms with traditional layout
Set in the popular village of Standish, this two-bedroom semi offers a clear chance to buy into a very desirable neighbourhood at an attractive price. The house is offered with vacant possession and no chain, with a driveway, double glazing and gas central heating already in place — useful practical benefits for a buyer planning improvements. The standout asset is the exceptionally long, secure rear garden that backs onto woodland via a gated entrance, providing privacy and scope for outdoor living or garden-focused extension.
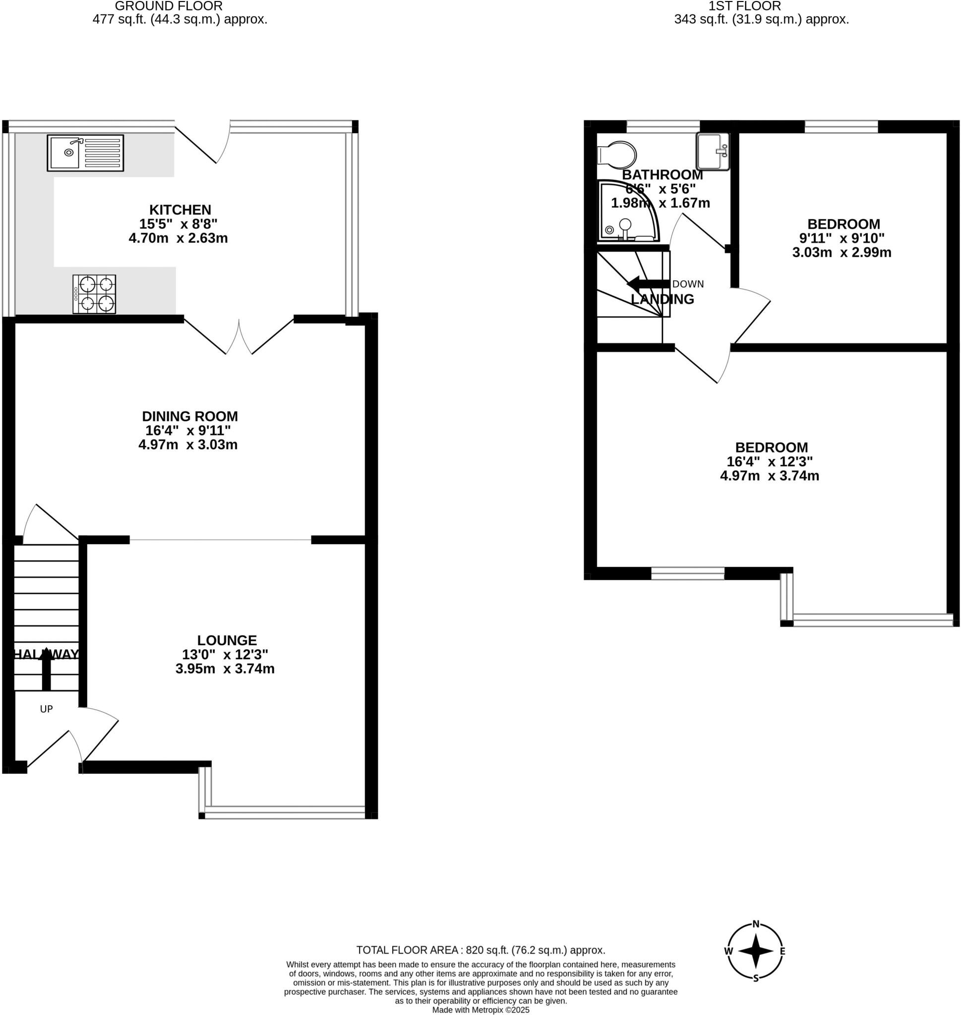
Internally the layout is traditional and straightforward: lounge with fireplace, separate dining room and kitchen on the ground floor, two double bedrooms and a bathroom upstairs. The property totals around 820 sq ft and sits on a small plot but benefits from a long mature garden, patio, shed and a utility building. Broadband speeds are fast and mobile signal is excellent, while local schools and village amenities are within easy reach.
The house does require renovation throughout to bring decor, kitchen and bathroom up to modern standards; this is reflected in the price and presents clear potential to add value. Buyers should expect refurbishment works rather than a move-in-ready home. For first-time buyers or investors wanting to personalise a home or unlock uplift through improvement, this is a practical and well-located proposition.
Practical points: freehold tenure, no flood risk, very low local crime, and construction dates to the mid-20th century with cavity walls and post-2002 double glazing. Those seeking a turnkey, modern finish should note the work required; purchasers looking for garden space, privacy and renovation potential will find this property attractive.
2 bedroom semi-detached house for sale in St. Wilfrid's Road, Standish, Wigan, WN6 — £165,000 • 2 bed • 1 bath • 574 ft²
3 bedroom semi-detached house for sale in Broomfield Road, Standish, Wigan, WN6 — £175,000 • 3 bed • 1 bath • 747 ft²
2 bedroom semi-detached bungalow for sale in Pepper Lane, Standish, Wigan, WN6 — £240,000 • 2 bed • 1 bath • 724 ft²
2 bedroom semi-detached house for sale in James Place, Standish, WN6 — £220,000 • 2 bed • 1 bath • 605 ft²
2 bedroom semi-detached house for sale in Simfield Close, Standish, WN6 0RJ, WN6 — £199,995 • 2 bed • 1 bath • 639 ft²
3 bedroom semi-detached house for sale in Cornwall Crescent, Standish, WN1 — £200,000 • 3 bed • 1 bath • 776 ft²










































































































