**Standout Features:**
- **Grade II Listed thatched cottage**: Rich in historic character
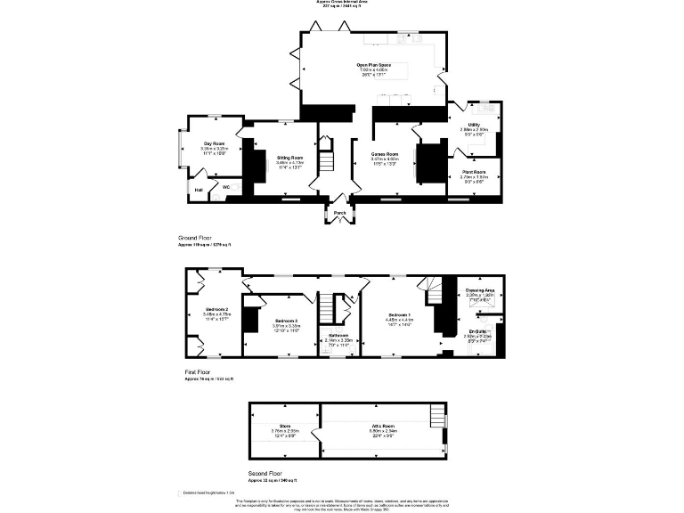
- **Spacious living**: 2,441 sq. ft, 4 double bedrooms including an attic room
- **Modern comforts**: Open-plan kitchen with quality appliances and a stunning inglenook fireplace
- **Expansive garden**: Magical outdoor space with ponds, woodland, and a workshop
- **Parking**: Ample off-road parking for several vehicles
- **Potential for extension**: Planning permission granted for bay window demolition and side extension (P/HOU/2022/01198)
Nestled in the delightful village of Hazelbury Bryan, this enchanting Grade II listed thatched cottage combines timeless charm with modern living, making it perfect for families and retirees alike. With an impressive 2,441 sq. ft of living space, enjoy four spacious double bedrooms alongside a versatile attic room. The open-plan kitchen and dining area boasts chic quartz countertops and large windows, seamlessly integrating traditional charm with contemporary conveniences.
Step outside to discover a stunning garden, featuring ponds and winding paths that invite exploration and relaxation. Perfectly suited for gatherings or peaceful moments, this expansive retreat is a haven for nature enthusiasts. Additional benefits include ample off-street parking and a sizable workshop that provides flexible usage options.
While the property is exempt from an Energy Efficiency Rating due to its listed status, its tranquil village setting offers excellent mobile signal and fast broadband—ideal for modern living. Don’t miss this exceptional opportunity to own a piece of history with room for your personal touch. Experience country living at its best and envision your future among the rustic elegance of this cottage before it slips away!
2 bedroom cottage for sale in Wonston, Hazelbury Bryan, Sturminster Newton, DT10 — £390,000 • 2 bed • 1 bath • 810 ft²
4 bedroom cottage for sale in The Cross, Shillingstone, Blandford Forum, DT11 — £475,000 • 4 bed • 2 bath • 1900 ft²
3 bedroom cottage for sale in Church Walk, Motcombe, SP7 — £350,000 • 3 bed • 2 bath • 1313 ft²
3 bedroom detached house for sale in Moorside, Sturminster Newton, DT10 — £650,000 • 3 bed • 2 bath • 1873 ft²
3 bedroom detached house for sale in Lime Kiln Road, Lytchett Matravers, Poole, BH16 — £685,000 • 3 bed • 2 bath • 1421 ft²
4 bedroom house for sale in The Old Bakery, Milton Abbas, Blandford Forum, DT11 — £950,000 • 4 bed • 3 bath • 3100 ft²










































































