Chain-free three-bedroom town house near Ilkley centre with period charm and EV charging.
Stone-built Victorian mid-terrace with period features
A stone-built Victorian mid-terrace in central Ilkley, offered chain-free and ready for immediate occupation. The house keeps period character — bay windows, cast-iron fireplaces and original coving — while providing modern comforts including sealed-unit double glazing, gas central heating and an EV charging point. Low-maintenance front and rear gardens suit buyers wanting outside space without heavy upkeep.
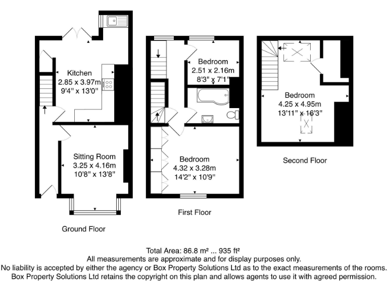
Accommodation is arranged over three floors with a generous principal bedroom, an attic room with Velux windows and a well-appointed modern bathroom. The kitchen/dining room with French doors opens onto a small rear patio, making the layout practical for everyday family life or a commuter couple wanting easy access to town and rail links.
Notable positives include excellent local schools, fast broadband and a very affluent neighbourhood close to Ilkley town centre and the Wharfe Valley. The property is freehold and shown as chain-free, which will suit buyers looking for a quick move.
Buyers should note the plot and gardens are small and the stone walls are likely uninsulated (as built). Crime is recorded as above average for the area and the terrace sits directly on a residential street with on-street parking only. There is some conflicting detail in the paperwork about bathroom count; prospective purchasers should verify fixtures, fittings and exact room/bathroom numbers during inspection and title checks.
3 bedroom terraced house for sale in North Parade, Ilkley, LS29 — £279,000 • 3 bed • 2 bath • 911 ft²
3 bedroom terraced house for sale in Mornington Road, Ilkley, West Yorkshire, LS29 — £255,000 • 3 bed • 1 bath • 834 ft²
3 bedroom terraced house for sale in Clifton Terrace, Ilkley, West Yorkshire, LS29 — £475,000 • 3 bed • 1 bath • 1270 ft²
4 bedroom end of terrace house for sale in Gordon Street, Ilkley, West Yorkshire, LS29 — £380,000 • 4 bed • 2 bath • 1195 ft²
3 bedroom end of terrace house for sale in Ash Street, Ilkley, West Yorkshire, LS29 — £350,000 • 3 bed • 2 bath • 1257 ft²
5 bedroom house for sale in Skipton Road, Ilkley, LS29 — £425,000 • 5 bed • 2 bath • 1620 ft²










































































