DA1 1YD - 3 bed victorian semi detached in The Brent, DA1 1YD

View on Property Piper

3 bedroom semi-detached house for sale in The Brent, Dartford, Kent, DA1

Summary - 45 THE BRENT DARTFORD DA1 1YD

3 bed 2 bath Semi-Detached

Renovated Victorian home with driveway and garden, ready to move in.
Three bedrooms, newly renovated throughout
This recently renovated three-bedroom semi-detached home blends period character with contemporary finishes. New kitchen, new windows, updated bathrooms and a fresh interior mean you can move in with minimal work required.

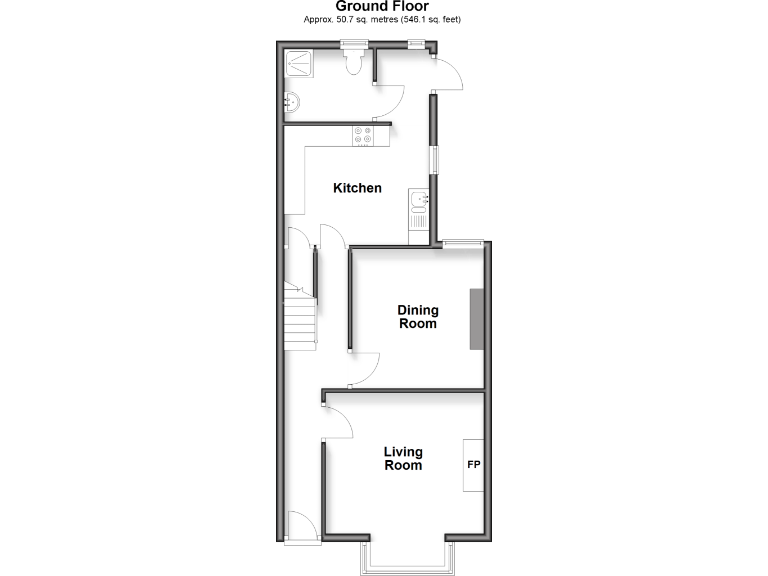
The house offers a practical layout across approximately 733 sq ft: sitting room with bay window, separate dining room, ground-floor shower room and a family bathroom upstairs. Off-street parking on the driveway and a well-maintained rear garden add valuable outdoor and parking space on a small plot.

Located close to Dartford town centre, the train station and the A2/M25, the property suits commuters and first-time buyers wanting easy travel links and local amenities. Nearby primary and secondary schools are rated Good.

Notable drawbacks are the property's small overall size and plot, and the building is solid brick with assumed lack of wall insulation, which could affect winter heating costs. The immediate area records higher crime levels than average, which buyers should factor into their decision and local due diligence.

Property Details

Image Descriptions

Floorplan Description

Rooms

Textual Property Features

Target Audience

AI Tags

Detected Visual Features

EPC Details

Nearby Schools

Nearest Bars And Restaurants

,,,,}

Nearest General Shops

,,}

Nearest Grocery shops

,,}

Nearest Supermarkets

,,}

Nearest Religious buildings

,,}

Nearest Medical buildings

,,,}

Nearest Airports

,,}

Nearest Leisure Facilities

,,,,}

Nearest Tourist attractions

,,}

Nearest Train stations

,,,,}

Nearest Bus stations and stops

,,,,}

Nearest Hotels

,,}

Tags

Local Market Stats

AirBnB Data

Similar Properties

Meta

High Res Images

Compatible Images

Low res Images

Thumbnails

Raw Images

High Res Floorplan Images

Compatible Floorplan Images

Low res Floorplan Images

FloorplanImages Thumbnail

Raw Floorplan Images