Generous garden, garage and adaptable family layout near M1 and Luton Airport.
Chain-free freehold property, ready for immediate purchase
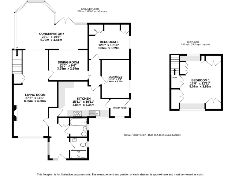
Set over a generous 1,534 sq ft, this three-bedroom semi-detached chalet bungalow offers adaptable family accommodation across two floors. The ground floor features a large living room with a feature gas fireplace, separate dining room and a substantial conservatory that opens onto landscaped gardens that wrap around three sides of the house. A wide kitchen/breakfast room and separate utility give practical everyday space, while a garage and rear off-street parking add useful storage and vehicle convenience.
Upstairs the principal bedroom is a bright dual-aspect room with fitted wardrobes, while two good-sized ground-floor bedrooms are served by a modern bathroom and separate shower room — a practical layout for multigenerational living or guests. Double glazing (fitted post-2002) and mains gas central heating with boiler and radiators are already in place, and broadband speeds in the area are fast.
Positioned in Caddington village, the house sits close to local amenities, good primary and secondary schools and has easy access to the M1, M25, Luton Airport and mainline stations at Harpenden and Luton Parkway. The property is offered freehold and chain free, allowing for a quicker purchase.
Buyers should note the home was constructed in the 1950s–1960s so some elements may reflect that age and could benefit from cosmetic updating over time. Council tax sits above the local average — an ongoing cost to factor into budgets. Overall, this is a spacious family home in a quiet, well-connected village setting with strong garden and parking credentials.
3 bedroom semi-detached bungalow for sale in The Dell, Caddington, LU1 — £380,000 • 3 bed • 1 bath • 7096 ft²
4 bedroom chalet for sale in Manor Road, Caddington, LU1 — £599,950 • 4 bed • 3 bath • 1750 ft²
3 bedroom detached bungalow for sale in Edgecote Close, Caddington, LU1 — £499,995 • 3 bed • 1 bath • 1227 ft²
4 bedroom detached house for sale in Dunstable Road, Caddington, Luton, LU1 — £550,000 • 4 bed • 2 bath • 1508 ft²
3 bedroom semi-detached house for sale in Cadia Close, Caddington, Luton, Bedfordshire, LU1 — £400,000 • 3 bed • 1 bath • 1121 ft²
3 bedroom detached bungalow for sale in Chartwell Drive, Luton, LU2 — £425,000 • 3 bed • 1 bath • 619 ft²






























































































