**Standout Features:**
- Spacious barn conversion with 5 bedrooms and 4 bathrooms
- Generous plot of nearly ¾ acre with mature landscaped gardens
- Secure gated entrance with extensive parking for up to 15 vehicles
- Large double garage with potential for annexe conversion
- Modern amenities: air-source heating, underfloor heating, air conditioning, and Sonos sound system
- Peaceful, secluded setting with no immediate neighbors
- Newly renovated with a contemporary design
**Notable Concerns:**
- Council tax is expensive
- Area classification may indicate limited amenities
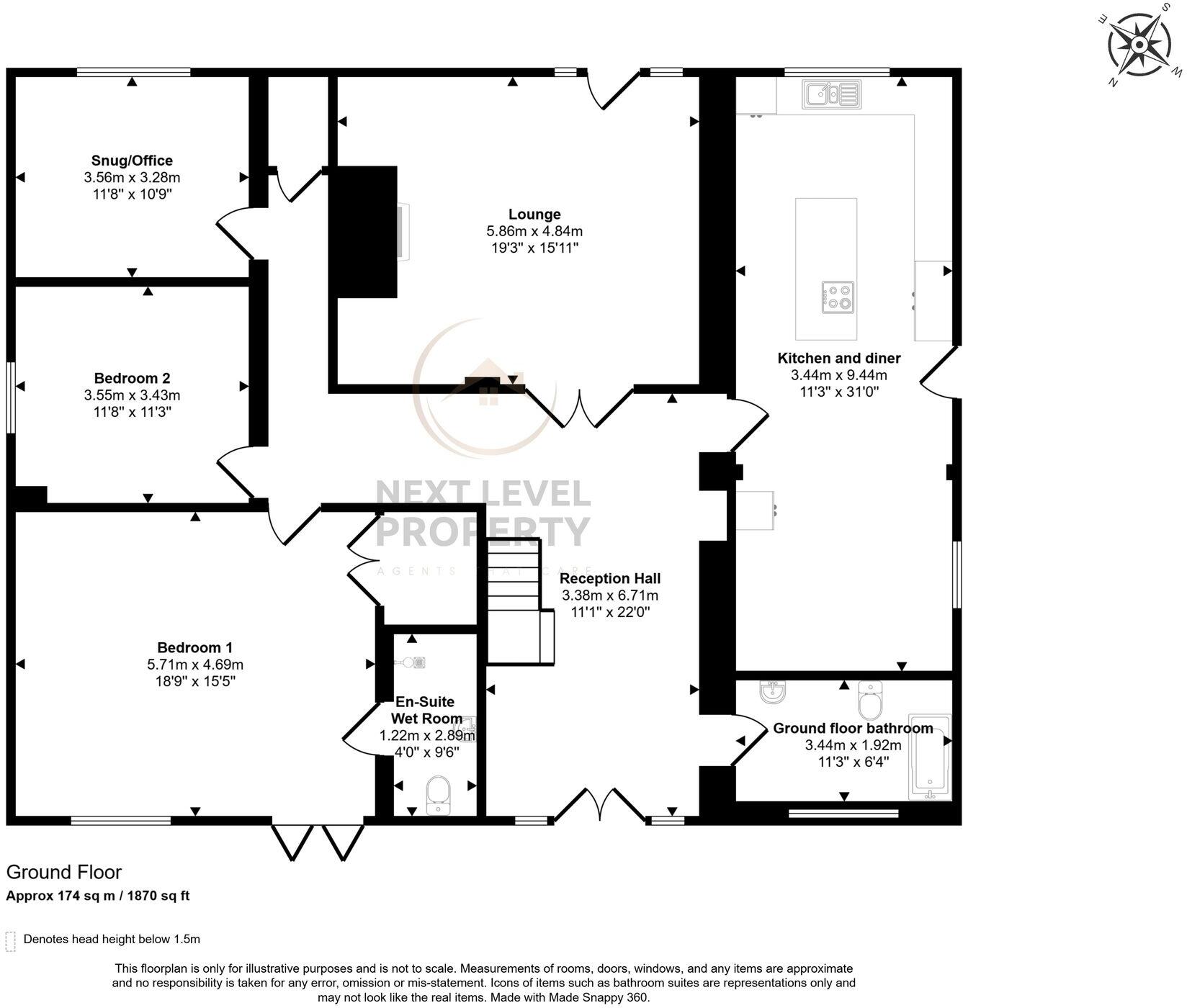
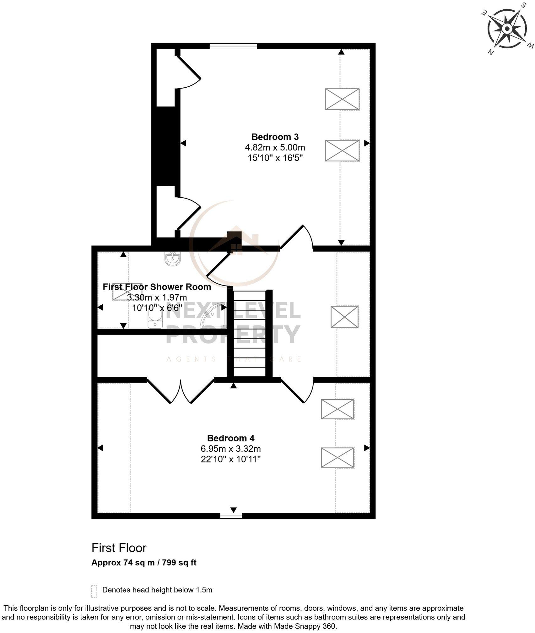
Escape to Oak Lodge, a stunning barn conversion that seamlessly blends rustic charm with modern luxury. Nestled in a tranquil, secluded setting with nearly three-quarters of an acre to enjoy, this generous property features five spacious bedrooms and four well-appointed bathrooms spread over two inviting floors. The expansive landscaped gardens, complete with a pond and vegetable patch, offer a delightful outdoor sanctuary perfect for relaxation and entertainment.
Equipped with modern comforts, including air-source heating and triple-glazed windows, this home promises year-round coziness. The double garage presents an exciting opportunity for conversion into an annexe or home office, expanding your family's possibilities. With no immediate neighbors and an impressive sweeping driveway, privacy and peace await you. This unique property, offered chain-free, is a rare find—don’t miss your chance to experience the idyllic lifestyle Oak Lodge has to offer.
4 bedroom barn conversion for sale in Well End, Friday Bridge, PE14 — £475,000 • 4 bed • 3 bath • 2432 ft²
3 bedroom barn conversion for sale in Trinity Road, Walpole Highway, PE14 — £650,000 • 3 bed • 2 bath • 2260 ft²
4 bedroom detached house for sale in Sutton Road,Four Gotes PE13 — £525,000 • 4 bed • 2 bath • 2476 ft²
3 bedroom end of terrace house for sale in Gull Lane, Leverington, PE13 — £340,000 • 3 bed • 1 bath • 1594 ft²
3 bedroom barn conversion for sale in Stow Road, Wiggenhall St. Mary Magdalen, King's Lynn, PE34 — £575,000 • 3 bed • 2 bath • 1088 ft²
3 bedroom barn conversion for sale in Walpole Bank, Walpole St. Andrew, PE14 — £600,000 • 3 bed • 5 bath • 1851 ft²


































































































































































































































