Contemporary sixth-floor apartment with balcony and concierge services.
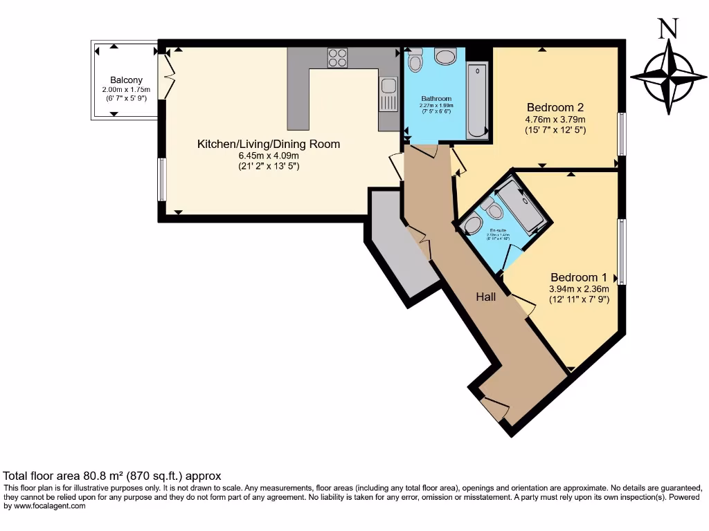
Two double bedrooms and two bathrooms, approx 870 sq ft
Open-plan living room with west-facing private balcony
24-hour concierge, residents' gym and communal gardens
Well-maintained kitchen; built-in storage in master bedroom
EPC Band B; mains gas central heating, double glazing
Leasehold tenure — expect service charges and ground rent
Block exterior shows maintenance needs that may affect charges
Excellent transport links; Holloway Road and nearby stations
Bright, well-proportioned two-bedroom apartment on the sixth floor of a modern 2007–2011 development. The open-plan living space flows onto a west-facing balcony, ideal for afternoon light and casual outdoor seating. The recently maintained kitchen and built-in storage make the home move-in ready for a first-time buyer or a couple.
Residents benefit from 24-hour concierge, a gym and landscaped communal gardens, plus good transport links: Holloway Road (Piccadilly Line) and nearby Overground/rail connections. Local shops include Waitrose and Sainsbury’s, and the area offers a wide choice of cafés, restaurants and strong schooling options, including several 'Good' and 'Outstanding' rated schools.
Practical points to note: the property is leasehold with associated service charges and an EPC rating of B. Exterior photos indicate some block maintenance is needed, which may affect future service costs. The flat is an average-sized two-bedroom (approx 870 sq ft) in a busy inner-city neighbourhood, so buyers wanting quieter, garden-level living should consider this.
Overall this is a convenient, contemporary apartment offering safe, managed communal living and strong transport links — a straightforward purchase for a buyer seeking an accessible London base or rental potential, provided leasehold costs are reviewed by a conveyancer.
2 bedroom apartment for sale in Queensland Road, London, N7 — £625,000 • 2 bed • 2 bath • 721 ft²
2 bedroom flat for sale in Empire Square, Holloway, N7 — £500,000 • 2 bed • 2 bath • 790 ft²
2 bedroom apartment for sale in Holloway Road, London, N7 — £540,000 • 2 bed • 1 bath • 806 ft²
2 bedroom flat for sale in Hornsey Street, Holloway, London, N7 — £475,000 • 2 bed • 1 bath • 814 ft²
2 bedroom apartment for sale in Hornsey Street, Holloway, London, N7 — £500,000 • 2 bed • 1 bath • 780 ft²
2 bedroom flat for sale in Axminster Road, Holloway, London, N7 — £500,000 • 2 bed • 2 bath • 759 ft²














































