**Standout Features:**
- Contemporary end-terrace townhouse in pristine condition
- Spacious 4-bedroom residence with 4 modern bathrooms
- Landscaped south-facing garden, ideal for families
- Off-street parking for two vehicles
- Prime location in the desirable Anniesland district
- Excellent transport links and local amenities
**Noteable Concerns:**
- Council tax rates are expensive
- Area classification indicates high levels of deprivation
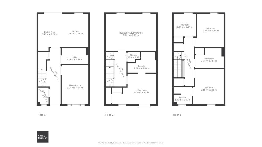
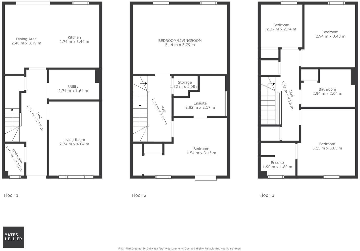
Discover this immaculate contemporary townhouse in a peaceful cul-de-sac in the sought-after Anniesland district, perfect for families seeking both comfort and proximity to essential amenities. Boasting a generous 1582 sq ft of space over three levels, this property features four well-proportioned double bedrooms—two with en-suite bathrooms—allowing for flexible living arrangements. The stylish kitchen, complete with integrated appliances, opens into a dining area that flows into the beautifully landscaped south-facing garden, perfect for outdoor entertaining.
Enjoy the convenience of off-street parking for two vehicles, alongside fast broadband and excellent mobile signal. Just moments away are local shops, cafes, and convenient access to Anniesland railway station for easy commuting. Although the area faces some challenges with higher council taxes, the home's quality and location present a valuable opportunity in a rapidly developing community.
Act quickly—properties like this, offering such modern comforts amidst an array of family-friendly amenities, are in high demand and won't be available for long. Embrace the potential of this enviable residential choice and secure your family's new home today!
4 bedroom house for sale in Knightsbridge Street, Knightswood, Glasgow, G13 — £305,000 • 4 bed • 4 bath • 1407 ft²
4 bedroom town house for sale in Netherton Gardens, Anniesland, Glasgow, G13 1EE, G13 — £229,000 • 4 bed • 2 bath • 1033 ft²
3 bedroom end of terrace house for sale in 2 Netherton Gardens, Anniesland, G13 — £225,000 • 3 bed • 3 bath • 1013 ft²
2 bedroom terraced house for sale in Temple Locks Place, Anniesland, Glasgow, G13 — £175,000 • 2 bed • 1 bath • 587 ft²
4 bedroom terraced house for sale in Greenknowe Court, Pollokshaws, Glasgow, G43 — £370,000 • 4 bed • 4 bath • 1522 ft²
3 bedroom terraced house for sale in Kintore Road, Cathcart, Glasgow, G43 — £315,000 • 3 bed • 3 bath • 1182 ft²


















































































































