Chain-free 1930s detached home with large garden, parking and excellent school catchment refurbishment opportunity.
Chain-free 1930s detached house on large plot
South-west facing rear garden, private and spacious
Off-street parking for 2–3 cars
Potential to extend at side and rear (subject to planning)
Requires renovation and modernisation throughout
Cavity walls assumed uninsulated; energy rating D
Council Tax Band E (above average running costs)
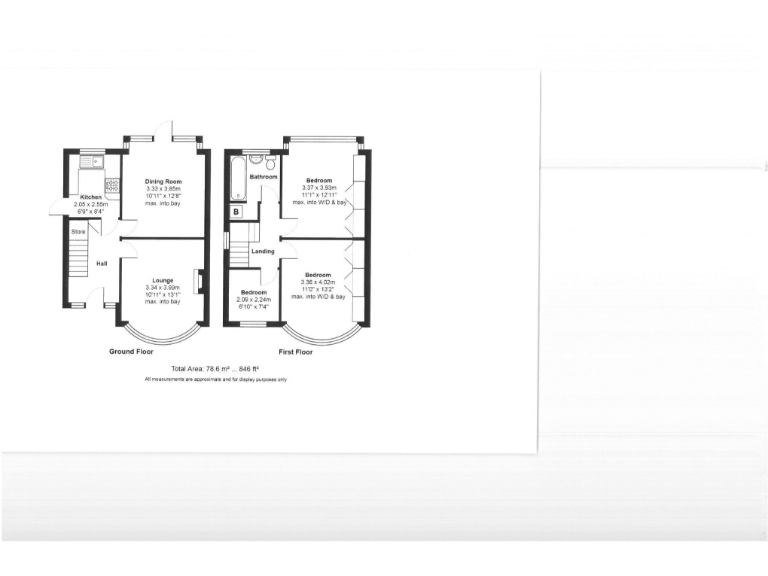
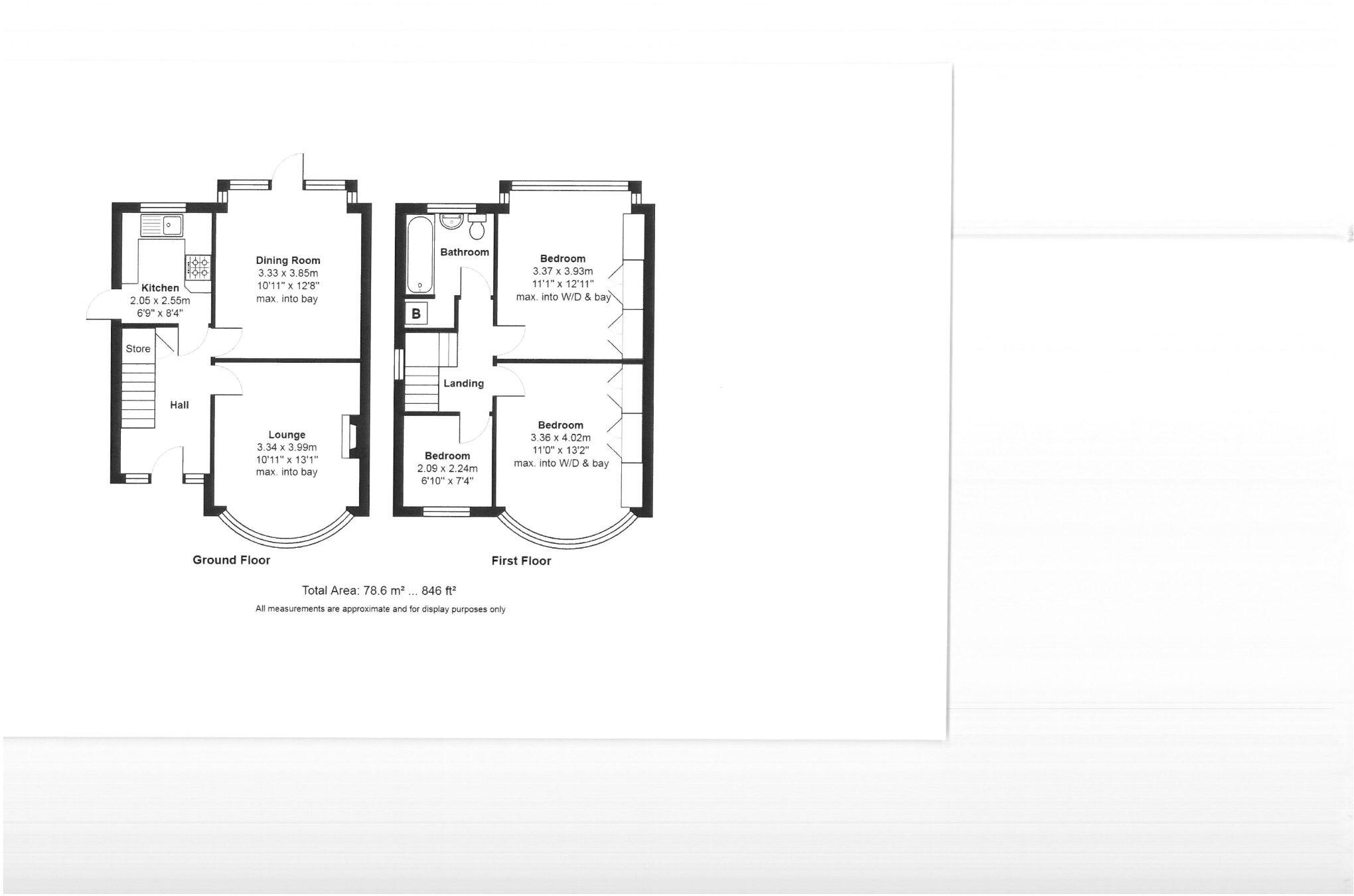
Freehold; 846 sq ft total internal area
This 1930s detached home on Waterloo Road is offered chain-free after more than 80 years in the same family. Set on a large plot with off-street parking for 2–3 cars and a generous south-west facing garden, the property suits buyers seeking space, outdoor privacy and strong local schools.
Internally the house retains period character including a bay-fronted living room and original fireplace, arranged over two floors with three bedrooms and one bathroom. The layout provides straightforward living with scope to modernise, and there is potential to extend to the side and rear subject to planning.
The house requires renovation: cosmetic updating, likely insulation upgrades (cavity walls assumed uninsulated) and general modernisation. Energy Efficiency Rating D and Council Tax Band E reflect running costs to consider. For buyers prepared to invest, the location, plot size and extension potential offer clear value uplift in a highly sought Bramhall setting.
3 bedroom detached house for sale in Ladythorn Grove, Bramhall, SK7 — £700,000 • 3 bed • 1 bath • 1512 ft²
4 bedroom detached house for sale in Mayfield Road, Bramhall, SK7 — £1,000,000 • 4 bed • 1 bath • 1712 ft²
3 bedroom semi-detached house for sale in Seal Road, Bramhall, Stockport, Cheshire, SK7 — £395,000 • 3 bed • 1 bath • 978 ft²
3 bedroom detached house for sale in Langdale Road, Bramhall, SK7 — £475,000 • 3 bed • 1 bath • 1340 ft²
3 bedroom semi-detached house for sale in Central Drive, Bramhall, SK7 — £387,000 • 3 bed • 1 bath • 1017 ft²
4 bedroom detached house for sale in Padstow Drive, Bramhall, SK7 — £525,000 • 4 bed • 1 bath • 1196 ft²


































































