Open-plan living, private garden and single garage within walking distance of Malpas amenities.
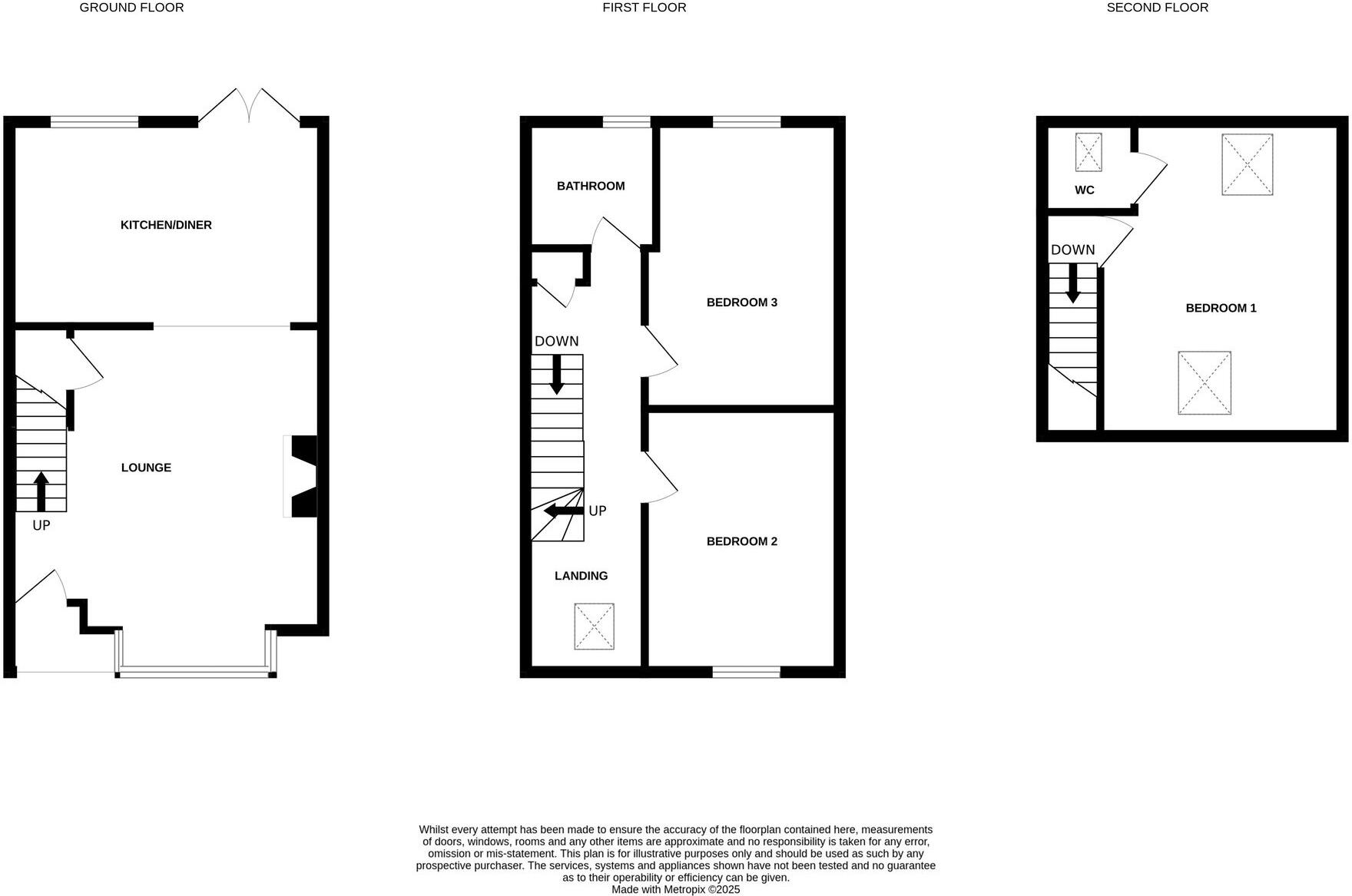
Three-storey mid-terrace with far-reaching elevated views
Set over three floors, this mid-terrace town house offers flexible family living with far-reaching views from an elevated position. The ground floor’s open-plan lounge/kitchen/dining area creates a bright social hub, with french doors onto a private, landscaped rear garden — a safe outdoor space for children and pets. The modern farmhouse-style kitchen includes fitted appliances and a range cooker for food-focused households.
Bedrooms occupy the two upper levels, with a spacious master featuring an en-suite WC and two further bedrooms suitable for children, guests or a home office. Heating is mains gas via a boiler and radiators; the property benefits from double glazing and an EPC rating of C. A single garage and driveway parking add practical convenience in this small-town setting within easy walking distance of shops, healthcare and schools.
Practical points to note: the house sits on a relatively small plot and has only one full bathroom (plus the en-suite WC), which may be restrictive for larger families. The three-storey layout can be less convenient for anyone with limited mobility. One nearby primary school has an Ofsted rating of ‘Requires improvement’ (other local schools are rated Good or Outstanding).
Offered freehold and constructed in the late 20th century, the home is presented as fastidiously maintained and ready to move into, but it also offers scope for modest updating or layout tweaks to suit growing families or buyers seeking rental potential. The town’s popular rural setting, good road links and local amenities add genuine everyday appeal.
3 bedroom semi-detached house for sale in Old Hall Street, Malpas, SY14 — £415,000 • 3 bed • 2 bath • 1044 ft²
3 bedroom semi-detached house for sale in Chester Road, Malpas, SY14 — £175,000 • 3 bed • 2 bath • 965 ft²
3 bedroom end of terrace house for sale in Watergate Street, Ellesmere, SY12 — £259,995 • 3 bed • 2 bath • 1197 ft²
3 bedroom semi-detached house for sale in Lynchet Road, Malpas, SY14 — £285,000 • 3 bed • 2 bath • 958 ft²
3 bedroom semi-detached house for sale in Lynchet Road, Malpas, Cheshire, SY14 — £230,000 • 3 bed • 2 bath • 840 ft²
3 bedroom semi-detached house for sale in Well Avenue, Malpas, SY14 — £230,000 • 3 bed • 1 bath • 855 ft²






































































































































































































