Chain-free three-bed with large garden and recent upgrades, ideal for first-time buyers..
- Three bedrooms on an average-sized layout
- Newly fitted kitchen and bathroom
- Large rear garden on a generous corner plot
- Off-street parking included
- Long leasehold (circa 940 years remaining)
- No onward chain for a quicker purchase
- Reported unfinished plumbing and some damp in kitchen
- Located in a very deprived area with above-average crime
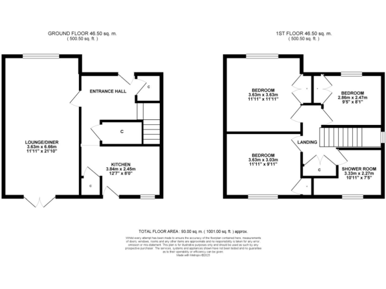
Set on a generous corner plot in Speke, this three-bedroom semi-detached home offers a practical, move-in-ready option for first-time buyers. The property benefits from a newly fitted kitchen and bathroom, two reception rooms and a large rear garden — useful for outdoor space or future extension (subject to planning).
The house is sold with no onward chain and comes with off-street parking and a long lease (approximately 940 years remaining). Broadband and mobile signal are strong, and local amenities including shops, a supermarket and regular bus links are within easy reach. Several nearby primary and secondary schools have good Ofsted ratings.
Buyers should note the property sits in a very deprived area with above-average local crime rates, which may affect resale considerations. The kitchen renovation appears recent but there are reports of unfinished plumbing and some damp issues that will need attention. The home is average in overall size internally, so it will suit those wanting a practical family starter rather than larger household space.
Overall, this chain-free, newly updated semi offers clear short-term convenience and longer-term potential for buyers willing to accept local area challenges and complete minor remedial works.
3 bedroom terraced house for sale in Blacklock Hall Road, Speke, Liverpool, L24 — £160,000 • 3 bed • 1 bath • 846 ft²
3 bedroom terraced house for sale in Withington Road, Liverpool, Merseyside, L24 — £137,500 • 3 bed • 1 bath • 1119 ft²
3 bedroom terraced house for sale in East Millwood Road, Liverpool, Merseyside, L24 — £145,000 • 3 bed • 1 bath
3 bedroom semi-detached house for sale in Goldfinch Farm Road, Speke, Liverpool, L24 — £145,000 • 3 bed • 1 bath • 829 ft²
3 bedroom semi-detached house for sale in Wade Brook Way, Speke, L24 — £225,000 • 3 bed • 2 bath • 773 ft²
3 bedroom semi-detached house for sale in All Hallows Drive, LIVERPOOL, Merseyside, L24 — £140,000 • 3 bed • 1 bath • 951 ft²














































































