RH10 1JP - 6 bedroom detached house for sale in Three Bridges Road, Cr…

View on Property Piper

6 bedroom detached house for sale in Three Bridges Road, Crawley, RH10

Summary - 138, THREE BRIDGES ROAD, CRAWLEY RH10 1JP

6 bed 3 bath Detached

**Standout Features:**
- Spacious six-bedroom detached home on a generous third of an acre.
- Versatile layout with scope for a self-contained annexe (subject to planning permission).
- Large block-paved driveway and double garage.
- Stunning south-facing landscaped garden.
- Modern kitchen equipped with built-in appliances.
- EPC Rating: C, featuring solar panels for energy efficiency.
- Chain-free sale.

**Summary:**
Discover your dream family home in this expansive six-bedroom detached residence set in a serene location on the eastern edge of Crawley, just moments from Three Bridges train station and the town centre. Boasting approximately 2,500 square feet, this property offers ample versatile space for families, featuring multiple reception rooms, a modern kitchen with built-in appliances, and a bright conservatory that opens to a beautifully landscaped south-facing garden. The home includes two en-suite bathrooms and a family bathroom, ensuring comfort for all.

While the property benefits from a large driveway and detached garage, it also presents potential for improvements or adaptations, including the possibility of a self-contained annexe for extended family or rental income—an ideal prospect for investors. Despite the vibrant community and local amenities, potential buyers should consider the area's higher crime rate when evaluating security. Priced at £875,000, this home is a rare find in a desirable location and is ready for you to make it your own. Don't miss out!

Property Details

Brochure Descriptions

Image Descriptions

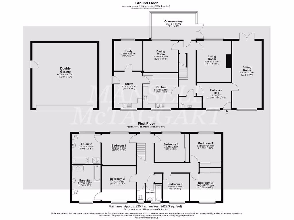
Floorplan Description

Rooms

Textual Property Features

Detected Visual Features

EPC Details

Nearby Schools

Nearest Bars And Restaurants

,,,,}

Nearest General Shops

,,}

Nearest Grocery shops

,,}

Nearest Supermarkets

,,}

Nearest Religious buildings

,,}

Nearest Medical buildings

,,,}

Nearest Airports

}

Nearest Leisure Facilities

,,,,}

Nearest Tourist attractions

,,}

Nearest Train stations

,,,,}

Nearest Bus stations and stops

,,,,}

Nearest Hotels

,,}

Tags

Local Market Stats

AirBnB Data

Similar Properties

Meta

High Res Images

Compatible Images

Low res Images

Thumbnails

Raw Images

High Res Floorplan Images

Compatible Floorplan Images

Low res Floorplan Images

FloorplanImages Thumbnail

Raw Floorplan Images