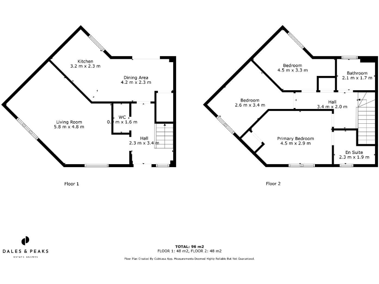
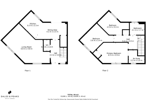
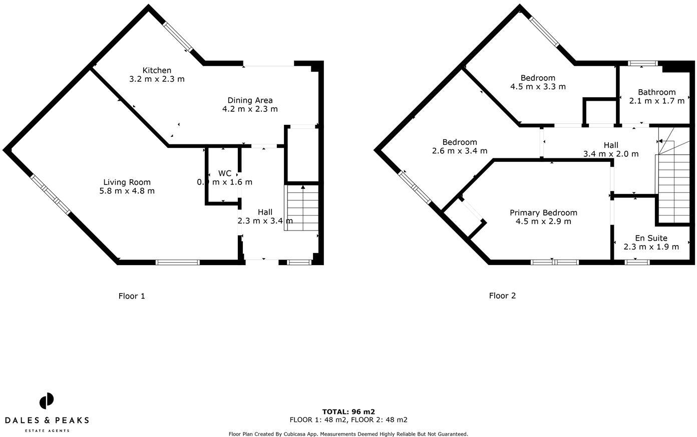
**Standout Features:**
- Modern 3-bedroom detached home built in 2019
- Deceptively spacious with 1,033 sqft of living space over two storeys
- Open plan dining kitchen with integrated appliances and patio doors to landscaped garden
- Large family lounge and three generously sized bedrooms, including master with en-suite
- Driveway for multiple vehicles and a quiet location near green space
- Remainder of a 10-year NHBC warranty
**Summary:**
Nestled within a quiet and sought-after development on the outskirts of Chesterfield, this modern 3-bedroom detached home seamlessly combines comfort and spaciousness. Spread across 1,033 sqft, it features an open-plan dining kitchen with integrated appliances and patio doors leading to a beautifully landscaped garden, perfect for family gatherings or peaceful evenings outdoors. The large lounge invites relaxation, while the three well-proportioned bedrooms and two bathrooms—including a master en-suite—ensure ample living space for families.
The property's location offers easy access to Sheffield and neighboring countryside, making it an ideal choice for those seeking a rural lifestyle without sacrificing urban conveniences. While the neighborhood is known for its average crime levels and socio-economic challenges, the strong community vibe and excellent broadband connectivity add to its appeal. With the remainder of the NHBC warranty and no chain, this property is not just a home but a place to envision your future. A unique opportunity like this won't be available for long—schedule your viewing today to experience it firsthand.
3 bedroom link detached house for sale in Scafell Avenue, Chesterfield, S41 8BQ, S41 — £275,000 • 3 bed • 2 bath • 957 ft²
3 bedroom detached house for sale in Curbar Rise, Clay Cross, Chesterfield, S45 — £315,000 • 3 bed • 2 bath • 1034 ft²
4 bedroom detached house for sale in Staunton Close, Chesterfield, S40 2FE, S40 — £395,000 • 4 bed • 2 bath • 1463 ft²
4 bedroom detached house for sale in The Avenue, Wingerworth, Chesterfield, S42 6FT, S42 — £285,000 • 4 bed • 2 bath • 1227 ft²
4 bedroom detached house for sale in Murray Lane, Wingerworth, Chesterfield, S42 — £395,000 • 4 bed • 2 bath • 1471 ft²
5 bedroom detached house for sale in Damson Croft, Hollingwood, Chesterfield, S43 2HY, S43 — £325,000 • 5 bed • 3 bath • 1603 ft²






























































































































