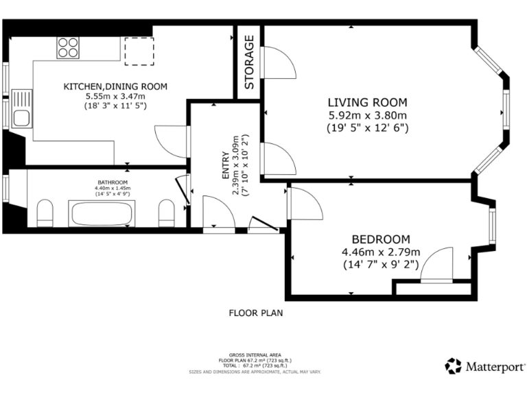
Rare main-floor one-bedroom with high ceilings and strong rental potential near Queen's Park.
- Large 1-bedroom ground-floor flat, approximately 721 sqft
- Tall Victorian ceilings and bay window provide strong period character
- New gas central heating and double-glazed windows installed
- Requires full modernisation throughout; priced accordingly
- Potential to add second bedroom subject to planning consent
- Access to maintained communal gardens at rear of building
- Excellent transport links, fast broadband and strong mobile signal
- Located in a very deprived area; factor refurbishment and resale risk
Set within a handsome red-sandstone tenement on Frankfort Street, this large one-bedroom ground-floor flat makes the most of classic Victorian features: tall ceilings, a bay-windowed living room and generous room proportions across 721 sqft. Practical upgrades are already in place, including double glazing and a new gas central heating combination boiler, and residents have access to well-kept communal gardens to the rear.
The property is marketed as a renovation project. The accommodation is bright and roomy and could be reconfigured — subject to planning — to form a second bedroom, offering clear upside for investors or buyers wanting to create additional value. Transport and local life are strong selling points: Crossmyloof station and frequent bus routes are nearby, while shops, cafes and Queen’s Park are all within easy walking distance.
Buyers should be aware this flat requires modernisation throughout and sits within an area classified as very deprived; budget and timing for refurbishment should be factored in. The tenure is freehold, council tax is moderate, flood risk is low, and connectivity is excellent with fast broadband and strong mobile signal. Overall, this is a characterful, well-positioned property for someone prepared to invest in updating to unlock its potential.
1 bedroom flat for sale in Skirving Street, Shawlands, Glasgow, G41 — £100,000 • 1 bed • 1 bath • 439 ft²
1 bedroom apartment for sale in Kilmarnock Road, Shawlands, Glasgow, G41 — £165,000 • 1 bed • 1 bath • 696 ft²
1 bedroom flat for sale in Calder Street, Glasgow, G42 — £120,000 • 1 bed • 1 bath • 405 ft²
1 bedroom flat for sale in 21 Skirving Street, Flat 1/2, Shawlands, Glasgow, G41 3AB, G41 — £169,000 • 1 bed • 1 bath • 710 ft²
1 bedroom flat for sale in 2/1 98 Middleton Street, Glasgow, G51 1AE, G51 — £49,999 • 1 bed • 1 bath • 484 ft²
1 bedroom apartment for sale in Skirving Street, Shawlands, Glasgow, G41 — £145,000 • 1 bed • 1 bath • 518 ft²






















































