Chain-free, close to station — ideal project for first-time buyers or investors.
Victorian mid-terrace with bay-window character
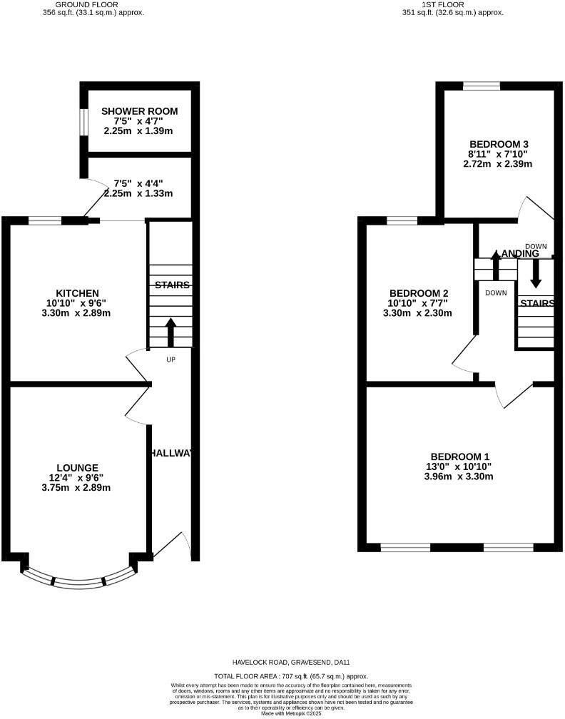
A classic Victorian mid-terrace with immediate scope for improvement, offered chain free and positioned within easy reach of Gravesend town centre and the mainline station. The house retains period character — a bay-windowed lounge and solid brick construction — and presents a clear opportunity for buyers to add value through renovation.
The accommodation is compact: lounge, kitchen, ground-floor shower room and three first-floor bedrooms across approximately 757 sq ft. The property currently shows signs of wear (visible damp/mould in the living room) and has basic heating (room heaters plus mains gas) and likely no cavity insulation in the solid brick walls, so buyers should expect refurbishment costs to modernise comfort and efficiency. EPC rating E.
Outside is a small, low-maintenance rear garden suitable for easy upkeep or a modest landscaping project. Local amenities are strong — shops, eateries, and good-rated schools nearby — making this a practical choice for first-time buyers wanting a long-term home or investors seeking a project in a well-connected area.
Takeaway: a characterful terrace with good location and potential, but budget for remediation and upgrade works to address damp, heating, insulation and cosmetic updating.
2 bedroom house for sale in Granville Road, Gravesend, DA11 — £270,000 • 2 bed • 1 bath • 541 ft²
3 bedroom terraced house for sale in Suffolk Road, Gravesend, Kent, DA12 — £250,000 • 3 bed • 1 bath • 727 ft²
3 bedroom terraced house for sale in Granville Road, Gravesend, Kent, DA11 — £265,000 • 3 bed • 1 bath • 948 ft²
2 bedroom terraced house for sale in Nelson Road, Gravesend, DA11 7EF, DA11 — £260,000 • 2 bed • 1 bath • 1084 ft²
3 bedroom house for sale in Dashwood Road, Gravesend, DA11 — £380,000 • 3 bed • 1 bath • 1034 ft²
2 bedroom terraced house for sale in Salisbury Road, Gravesend, Kent, DA11 — £265,000 • 2 bed • 1 bath


































