**Standout Features:**
- **Leasehold Property**: Opportunity for long-term leaseholders to invest.
- **Significant Size**: Located on a massive 12-acre estate.
- **Renovated Condition**: Recently refurbished, providing a fresh and modern touch.
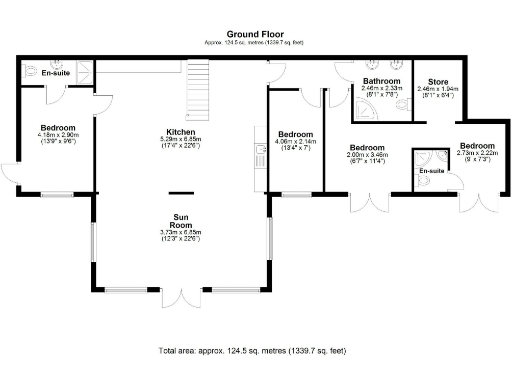
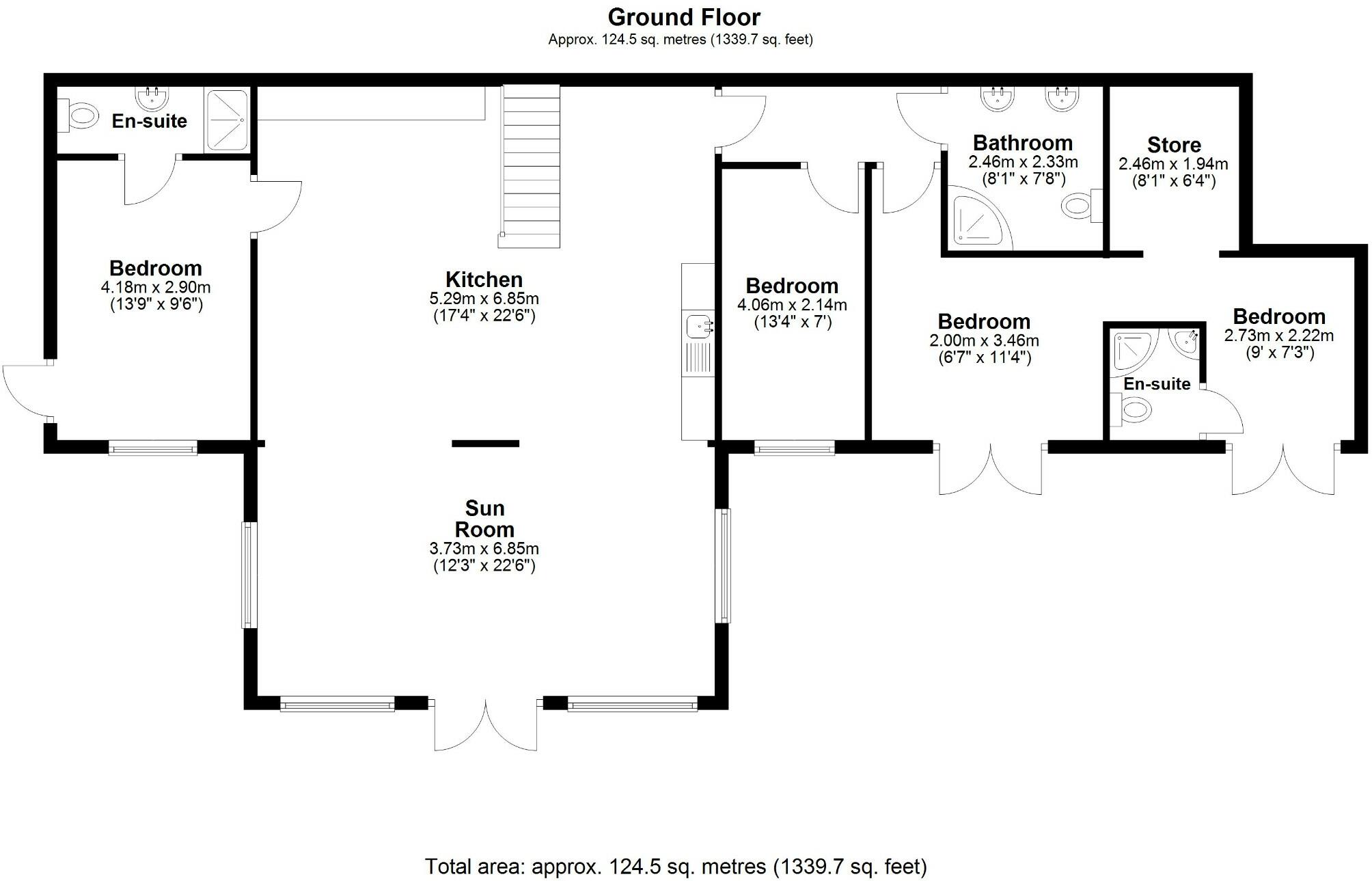
- **Spacious Accommodation**: 12 large bedrooms, including 7 ensuite and 6 additional bathrooms.
- **Versatile Business Potential**: Ideal for serviced accommodation, holiday letting, boutique hotel, or luxury retreat.
- **Scenic Outdoor Areas**: Lush gardens and serene views perfect for events or recreational activities.
- **Proximity to Schools**: Several reputable primary schools nearby.
**Summary:**
Discover a unique investment opportunity with this recently renovated leasehold commercial property in a prime Loughborough location. Set on a sprawling 12-acre estate, this contemporary holiday home features 12 spacious bedrooms, including 7 ensuite options, and 6 well-appointed bathrooms. The expansive kitchen offers customizable potential to meet various culinary needs, making it ideal for a boutique hotel, luxury retreat, or upscale bed and breakfast.
Enhance guest experiences with picturesque outdoor spaces, perfect for events and recreation, while the property's robust design allows future leaseholders to tailor the space according to their vision. While the local area is affluent, be mindful of average crime rates and slower broadband speeds, which may affect operations. With its modern feel and substantial growth potential, this property invites forward-thinking investors and entrepreneurs ready to make their mark in the thriving hospitality industry. Act now, as opportunities like this are rare!
6 bedroom detached house for sale in Sawley Road, Draycott, DE72 — £1,000,000 • 6 bed • 2 bath • 3902 ft²
5 bedroom detached house for sale in Main Street, Hemington, DE74 — £1,000,000 • 5 bed • 2 bath • 3736 ft²
6 bedroom house for sale in Nottingham Road, Draycott, DE72 — £1,375,000 • 6 bed • 6 bath • 4597 ft²
5 bedroom detached house for sale in Brook Street, Wymeswold, LE12 — £500,000 • 5 bed • 2 bath • 2569 ft²
4 bedroom country house for sale in Stud Farm, Cross Street, Breedon-on-the-Hill, Derby, DE73 8AX, DE73 — £600,000 • 4 bed • 2 bath • 2909 ft²
5 bedroom detached house for sale in Ladybird Close, East Leake, LE12 — £500,000 • 5 bed • 3 bath • 1841 ft²


































