Chain-free three-bed with granted planning for extra dwelling — auction sale, refurbishment potential..
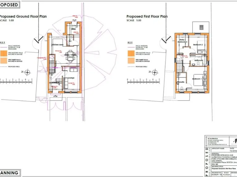
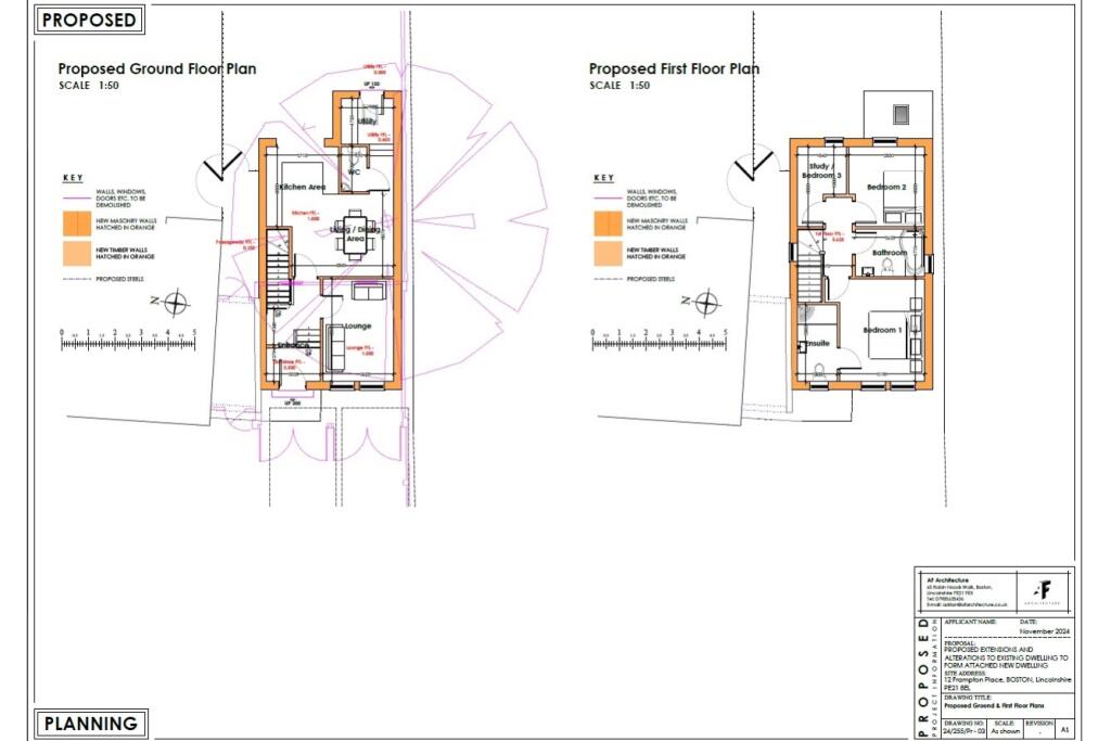
- Planning permission for attached three-bedroom dwelling (ref B/25/0060)
- Chain-free freehold; sold via Modern Method of Auction
- Spacious internal area c.1,368 sq ft with 3 beds, 2 baths
- Off-street parking and private rear garden
- EPC Rating C; mains gas boiler and radiators in place
- Small plot; limited scope beyond approved garage conversion
- Located in a deprived area with higher local crime statistics
- Property appears to need external and internal refurbishment
Offered for sale by Modern Method of Auction, this three-bedroom end-of-terrace in central Boston presents a clear investment proposition. The house is chain-free, freehold and comes with planning permission (ref B/25/0060) to convert the attached double garage into a separate three-bedroom dwelling — a potential route to immediate uplift or a rental income stream. The property has good internal space (about 1,368 sq ft), two bathrooms, off-street parking and a sizable rear garden.
The building dates from the late 1990s/early 2000s but shows signs of being a renovation project; images and local notes indicate overgrown external areas and some original/period features requiring attention. EPC is C and heating is mains gas with boiler and radiators, so essential services are in place. The small plot and constrained layout mean extensions are limited beyond the approved garage conversion, but the existing permission reduces planning risk for the attached new dwelling.
Location strengths include central town access, strong mobile/broadband, nearby shops, transport links and several well-rated primary and secondary schools. Material considerations: the area is described as deprived with a higher local crime rate; buyers should factor local market demand and potential management costs if let. Auction sale terms apply, including a reservation fee, so bidders must be prepared to proceed on auction conditions.
This property will suit investors and builders looking for a redevelopment or rental refurbishment opportunity who can work within auction timelines. It offers near-term value drivers (planning consent, chain-free sale, parking and garden) balanced against neighbourhood risk and renovation needs — make inspection and due diligence a priority before bidding.
Land for sale in Horncastle Road, Boston, PE21 — £35,000 • 1 bed • 1 bath
5 bedroom terraced house for sale in Tunnard Street, Boston, Lincolnshire, PE21 , PE21 — £135,000 • 5 bed • 2 bath • 1515 ft²
3 bedroom detached house for sale in Broadfield Lane, Boston, PE21 — £150,000 • 3 bed • 1 bath • 1058 ft²
3 bedroom terraced house for sale in Broadfield Street, Boston, PE21 — £109,950 • 3 bed • 1 bath • 836 ft²
3 bedroom end of terrace house for sale in Duke Street, Boston, PE21 — £119,950 • 3 bed • 1 bath • 939 ft²
2 bedroom semi-detached house for sale in Hospital Lane, Boston, PE21 — £119,950 • 2 bed • 1 bath • 866 ft²


























































