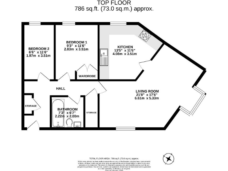
Top-floor position for privacy and leafy outlook
Large open-plan living/dining room with bay windows
Generous 786 sq ft — above average two-bedroom size
Allocated off-street parking space included
0.5 miles to St Albans station; 19-minute trains to London
Leasehold with 87 years remaining; consider lease length
Service charge ~£1,029 pa and ground rent £100 pa
Electric storage heaters; average broadband speeds
Set on the top floor of a well-kept contemporary block in the heart of St Albans, this two-bedroom apartment offers light-filled living and easy commuter access. The open-plan living/dining room with large windows and a bay aspect creates an airy social space, while the fitted kitchen and family bathroom provide move-in-ready convenience.
At 786 sq ft the flat is generous for a two-bedroom and will suit first-time buyers or professionals seeking extra space. Allocated off-street parking adds practical value in a city-centre location, and the property sits just 0.5 miles from St Albans City station with fast trains to London St Pancras (approx. 19 minutes).
Important practical notes: the property is leasehold with 87 years remaining, a service charge of about £1,029 pa and a small ground rent of £100 pa. Heating is via electric storage heaters and broadband speeds are average — factors to consider for running costs and future improvements.
Overall this apartment combines location, size and privacy for buyers who prioritise transport links and local amenities. It presents a comfortable home now with straightforward potential for updating (heating, connectivity) to improve energy efficiency and living comfort.



































