Chain-free detached family home with garden, garage and refurbishment potential near the marina..
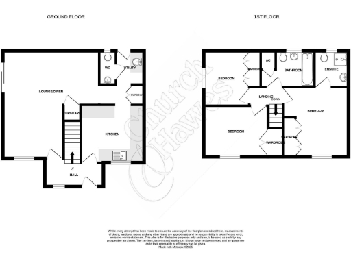
- Detached three-bedroom family home, freehold and chain-free
- One bedroom with en-suite, built-in wardrobes in all bedrooms
- Living/dining room with dual aspect and patio access
- Recently redecorated; new flooring, carpets, boiler and hot water cylinder
- Kitchen dated (1980s) and would benefit from modernisation
- Generous rear garden, driveway for 2–3 cars and detached garage
- Double glazing present; install date unknown
- Council tax band D; Energy Rating D
No onward chain and set within easy walking distance of Burnham-on-Crouch High Street, this detached three-bedroom house offers practical family living and genuine scope for improvement. The layout includes a dual-aspect living/dining room, kitchen with adjoining utility and cloakroom, and three double bedrooms upstairs — one with an en-suite — making it comfortable straightaway with potential to personalise.
Recent updates include redecoration, new flooring and carpets, plus a recently fitted boiler and hot water cylinder; however the property does require further modernisation, particularly the dated 1980s kitchen and some internal fixtures. The home benefits from double glazing (installation date unknown) and a sensible room flow that will suit families or buyers seeking a refurbishment project with good bones.
Outside, a generous rear garden, private driveway and detached garage add practical appeal and off-road parking for several vehicles. Located near river walks, marina, schools and the railway station with direct London links, this freehold house is well placed for both local amenities and commuter routes. A viewing is recommended to appreciate the size and potential on offer.
3 bedroom detached house for sale in Winstree Road, Burnham-On-Crouch, CM0 — £350,000 • 3 bed • 1 bath • 708 ft²
3 bedroom detached house for sale in Southminster Road, Burnham-On-Crouch, CM0 — £450,000 • 3 bed • 1 bath • 1238 ft²
3 bedroom detached house for sale in Brickwall Close, Burnham-on-Crouch, CM0 — £450,000 • 3 bed • 1 bath • 709 ft²
4 bedroom detached house for sale in Maldon Road, Burnham-on-Crouch, CM0 — £575,000 • 4 bed • 2 bath • 1324 ft²
3 bedroom semi-detached house for sale in Normandy Avenue, Burnham-On-Crouch, CM0 — £350,000 • 3 bed • 1 bath • 1088 ft²
4 bedroom detached house for sale in Hillside Road, Burnham-on-Crouch, CM0 — £550,000 • 4 bed • 2 bath • 463 ft²














































































