Spacious, storied apartment with garage and generous loft storage.
Grade II listed top-floor apartment with period features and exposed beams
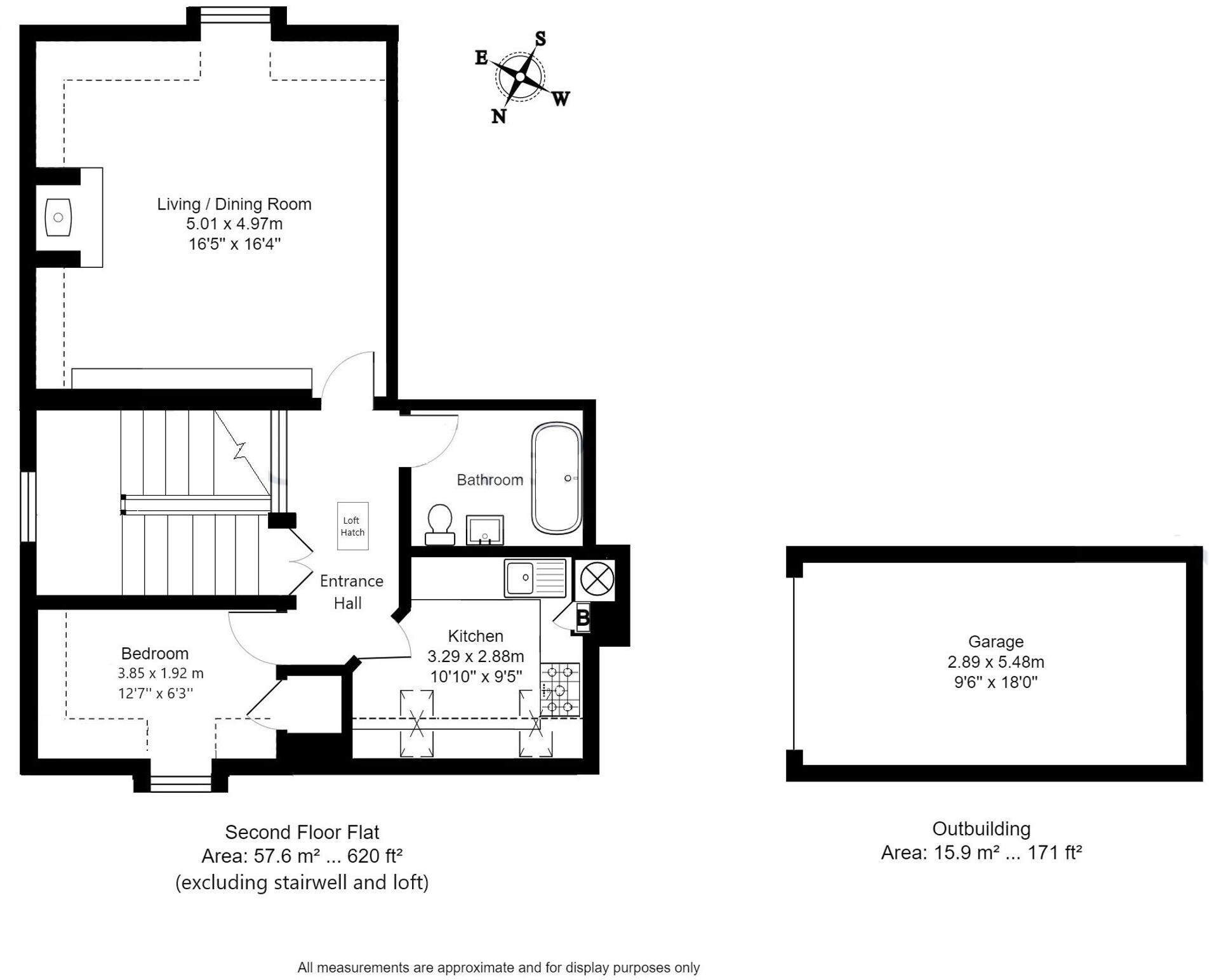
Set on the top floor of a handsome Grade II listed manor, this one-bedroom apartment offers generous living space and classic period detail. Exposed beams, wood flooring, plantation shutters and a brick fireplace with woodburner give the home character and warmth while double glazing and gas central heating provide modern comfort. The flat feels larger than many two-bed options at this price and includes extensive attic storage accessed by a pull-down ladder.
Practical strengths include a long lease (999 years), share of freehold, no ground rent and a controllable service charge of about £105 per month. A garage en bloc and a nearby public car park add useful parking options for residents. The location is central to Ticehurst village amenities, countryside walks and reasonable rail links to London from nearby Stonegate.
Important points to note: the building’s Grade II listed status preserves historic features but will restrict structural alterations and may complicate some improvements. The fabric is largely solid brick (original construction before 1900) so insulation options are limited without listed-building consent. Service charges are moderate but there is communal responsibility for upkeep of an older building.
This apartment suits someone seeking a characterful, low-hassle home in a picturesque village — ideal for downsizers or buyers who value period charm, storage and a long lease rather than a blank‑canvas renovation project.
1 bedroom flat for sale in High Street, Ticehurst, Wadhurst, East Sussex, TN5 — £200,000 • 1 bed • 1 bath • 514 ft²
4 bedroom semi-detached house for sale in Silverhill, Robertsbridge, TN32 — £480,000 • 4 bed • 2 bath • 1649 ft²
2 bedroom house for sale in Eden Court, Ticehurst, East Sussex, TN5 — £425,000 • 2 bed • 2 bath • 1065 ft²
2 bedroom apartment for sale in High Street, Goudhurst, Cranbrook, TN17 — £215,000 • 2 bed • 1 bath • 807 ft²
2 bedroom ground floor flat for sale in Luxury Retirement Apartment In Ticehurst, TN5 — £470,000 • 2 bed • 2 bath • 1001 ft²
2 bedroom terraced house for sale in High Street, Ticehurst, TN5 — £390,000 • 2 bed • 1 bath • 750 ft²














































































































