ME12 2QA - 2 bedroom terraced house for sale in Richmond Street, Sheer…

View on Property Piper

2 bedroom terraced house for sale in Richmond Street, Sheerness, Kent, ME12

Summary - Richmond Street, Sheerness, Kent ME12 2QA

2 bed 1 bath Terraced

Two-bedroom seaside fixer with strong development potential; auction sale, fees apply.
Freehold mid-terrace with two bedrooms and small rear garden
A compact two-bedroom mid-terrace with clear full-renovation and development potential, offered freehold and sold via Modern Method of Auction. The property occupies a small plot with a private rear garden and short walk to a Blue Flag beach, creating strong short- to medium-term appeal for investors or developers prepared to undertake works.

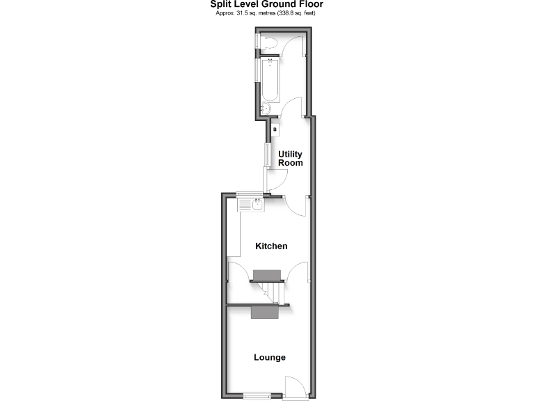
Internally the layout is linear and straightforward: lounge, kitchen, separate utility, bathroom and two upstairs bedrooms (larger second bedroom). The house retains period brick character but requires comprehensive refurbishment — cosmetic and likely systems work — to reach modern living standards.

Buyers should note material sale conditions: this lot is sold at auction subject to an undisclosed reserve and a non-refundable reservation fee (4.5% of the purchase price, minimum £6,600). A buyer information pack is available, and you must allow time for due diligence and finance within the auction’s contract timetable.

Location benefits include close proximity to schools (including a Good-rated nearby primary), local amenities and the seafront. Significant negatives are the very deprived local area classification, high local crime rates, small overall size and the explicit need for renovation — factors that will affect valuation, letting prospects and resale timescales.

Property Details

Image Descriptions

Floorplan Description

Rooms

Textual Property Features

Target Audience

AI Tags

Detected Visual Features

EPC Details

Nearby Schools

Nearest Bars And Restaurants

,,,,}

Nearest General Shops

,,}

Nearest Grocery shops

,,}

Nearest Supermarkets

,,}

Nearest Religious buildings

,,}

Nearest Medical buildings

,,,}

Nearest Airports

}

Nearest Leisure Facilities

,,,,}

Nearest Tourist attractions

,,}

Nearest Train stations

,,,,}

Nearest Bus stations and stops

,,,,}

Nearest Hotels

,,}

Tags

Local Market Stats

Similar Properties

Meta

High Res Images

Compatible Images

Low res Images

Thumbnails

Raw Images

High Res Floorplan Images

Compatible Floorplan Images

Low res Floorplan Images

FloorplanImages Thumbnail

Raw Floorplan Images