Spacious three-bedroom home with sweeping rural views and large sunny garden.
3 bedroom detached chalet bungalow with extensive side, rear and first-floor extensions
Large kitchen/breakfast room, separate dining room, lounge and conservatory
South-west facing large rear garden with patio, lawn, decking and countryside views
Driveway parking plus integral garage; useful external storage sheds
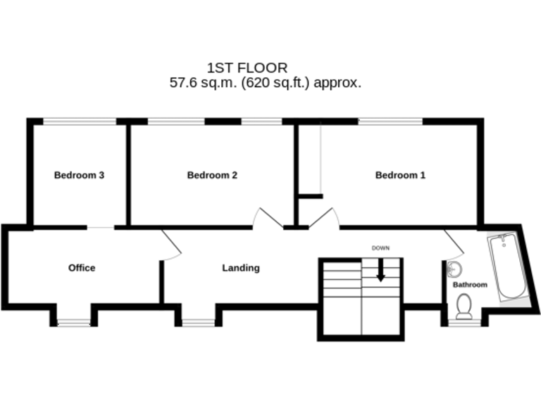
Ground-floor shower room; first-floor family bathroom and small office area
Built late 1960s–1970s — some typical maintenance and modernisation likely
Double glazing installed post-2002; gas central heating via boiler and radiators
Sold with no onward chain for a quicker sale
Set on the peaceful outskirts of Great Mongeham, this extended three-bedroom chalet bungalow combines generous living space with broad countryside views. The property has been extended to the side, rear and first floor, creating a flexible layout that includes a large kitchen/breakfast room, separate dining room, lounge and a conservatory opening onto the garden. The house benefits from double glazing (installed post-2002), gas central heating and an integral garage with driveway parking.
The large south-west facing rear garden offers patio, lawn and decked areas for relaxation and entertaining, plus useful outbuildings for storage. Upstairs provides three well-proportioned bedrooms, a family bathroom and a small office area — useful for homework or a home working space. The home is sold chain free, which can speed up a purchase for buyers wanting a prompt move.
Practical points to note: the property dates from the late 1960s/early 1970s and, while upgraded and extended, will reflect some typical maintenance and modernisation needs of its age. Broadband and mobile signal are average locally. For families, several good primary schools and a top-performing secondary are nearby, though one local secondary has an Inadequate Ofsted rating.
This detached chalet bungalow will suit buyers seeking countryside outlooks, flexible accommodation on a large plot and straightforward access to nearby towns. Viewings are recommended to appreciate the space, garden aspect and potential to adapt rooms to changing needs.
3 bedroom bungalow for sale in Ashton Close, Great Mongeham, CT14 — £425,000 • 3 bed • 1 bath • 947 ft²
2 bedroom detached bungalow for sale in Northbourne Road, Great Mongeham, Deal, Kent, CT14 — £218,500 • 2 bed • 1 bath • 616 ft²
3 bedroom detached bungalow for sale in Mongeham Road, Deal, CT14 — £425,000 • 3 bed • 1 bath • 872 ft²
3 bedroom semi-detached house for sale in Sholden Bank, Deal, CT14 — £385,000 • 3 bed • 2 bath • 1136 ft²
3 bedroom terraced house for sale in Mongeham Road, Great Mongeham, Deal, CT14 — £250,000 • 3 bed • 1 bath • 723 ft²
3 bedroom detached bungalow for sale in The Street, Godmersham, Canterbury, CT4 — £750,000 • 3 bed • 1 bath • 2055 ft²






















































































































