Sunny garden and uninterrupted golf-course views for family living.
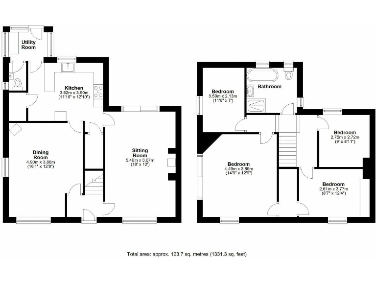
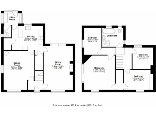
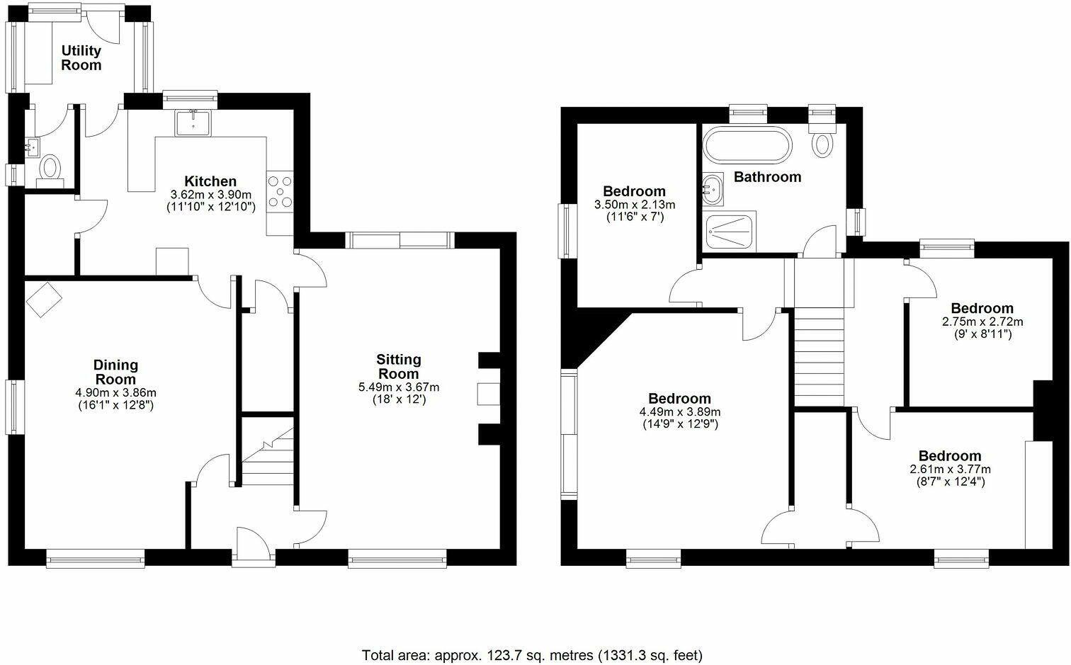
Four bedrooms with high ceilings and period character
Set at the head of a quiet cul-de-sac and backing directly onto Hobson Golf Club, this double-fronted four-bedroom semi combines period charm with recent, sympathetic renovation. High ceilings, feature log burners and a Juliet balcony off the principal bedroom frame wide, peaceful views across rolling fairways — ideal for families seeking space and a calm outlook.
The ground floor offers two versatile reception rooms, a newly fitted kitchen, utility space and a convenient downstairs WC. A large gated driveway leads to a detached garage with electrics, while the south-westerly rear garden enjoys plenty of sun, a patio for dining and mature fruit trees.
Practical points to note: the property is leasehold and the broadband speeds in the area are reported as very slow. The house has older double glazing (pre-2002) and cavity walls are recorded without added insulation (assumed), so further energy upgrades could be beneficial. Council tax is affordable and local crime is very low.
Overall, this thoughtfully updated 1920s home offers comfortable family living, strong curb appeal and exceptional exterior views. Buyers wanting move-in-ready period character will appreciate the tasteful finishes; those who prioritise high-speed connectivity or the highest energy efficiency should be aware of the likely improvement costs.
4 bedroom detached house for sale in Plover Drive, Burnopfield, Newcastle Upon Tyne, NE16 — £372,000 • 4 bed • 2 bath • 1362 ft²
3 bedroom detached house for sale in Grove Terrace, Burnopfield, Durham, NE16 — £330,000 • 3 bed • 2 bath • 1647 ft²
3 bedroom semi-detached house for sale in Mulberry Grove, Hobson, Burnopfield, NE16 — £180,000 • 3 bed • 1 bath
3 bedroom semi-detached house for sale in Hazel Grove, Burnopfield, NE16 — £200,000 • 3 bed • 1 bath
3 bedroom detached house for sale in Cricket Terrace, Burnopfield, NE16 — £220,000 • 3 bed • 1 bath • 797 ft²
4 bedroom end of terrace house for sale in Busty Bank, Burnopfield, Newcastle upon Tyne, NE16 — £325,000 • 4 bed • 2 bath • 2594 ft²






























































































































