Chain-free starter with garden, parking and good transport links.
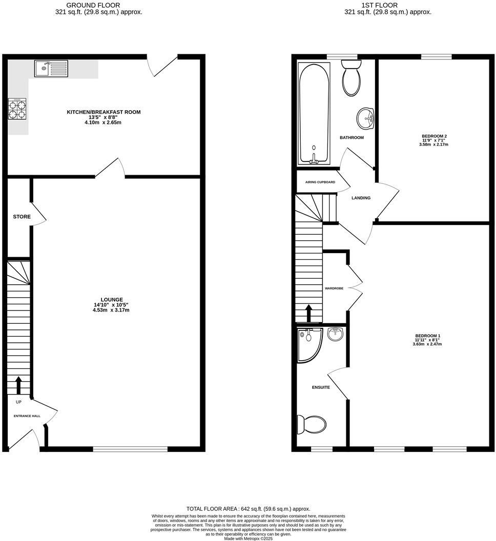
- Two bedrooms, master with en suite
- Chain free sale, Bovis-built, 1990s construction
- Private rear garden with patio and lawn
- One allocated off-street parking space
- Double glazed windows and gas central heating
- Dated kitchen; potential mould and needs modernization
- Small plot and compact 642 sq ft layout
- Area has higher crime and local deprivation levels
This two-bedroom end-of-terrace home offers practical living in a modern 1990s development. The ground floor has a lounge and a generous kitchen with direct garden access; the first-floor master includes an en suite, plus a separate family bathroom. Double glazing and gas central heating make the house comfortable year-round.
Outside, there is a private rear garden and one allocated off-street parking space. The home is chain-free and within walking distance of a Tesco superstore and local bus routes, with excellent mobile signal and fast broadband — useful for commuters and families alike.
Buyers should note the property sits in an area with higher crime and local deprivation indicators. The kitchen is dated and shows potential for mould if not updated; the small plot and compact internal footprint limit extension potential. Overall, the house suits buyers seeking a well-located, affordable starter or rental property willing to invest in modernization.
2 bedroom semi-detached house for sale in Paddington Close, Hayes, UB4 — £489,950 • 2 bed • 1 bath • 981 ft²
2 bedroom terraced house for sale in Colham Road, Uxbridge, UB8 — £425,000 • 2 bed • 1 bath • 761 ft²
3 bedroom semi-detached house for sale in Wheatley Crescent, Hayes, UB3 — £700,000 • 3 bed • 2 bath • 812 ft²
1 bedroom end of terrace house for sale in Braunston Drive, Hayes, Greater London, UB4 — £355,000 • 1 bed • 1 bath • 754 ft²
2 bedroom semi-detached house for sale in Bennetts Avenue, Greenford, UB6 — £465,000 • 2 bed • 1 bath • 655 ft²
2 bedroom terraced house for sale in Hollygrove Close, Hounslow, TW3 — £429,950 • 2 bed • 1 bath • 646 ft²


































