Ready-income property for hands-on investors near university amenities.
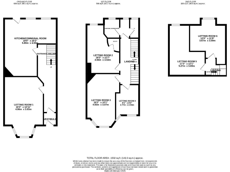
Licensed six-room HMO, fully let on 50-week academic contracts
Gross income £35,300; net income £30,564 after annual costs
One en-suite; communal kitchen/lounge, shower room and separate WC
EPC C; gas boiler and radiators, double glazed windows
Solid brick walls (likely no insulation) — improvement opportunity
On-street permit parking only; small plot and mid-terrace location
Located steps from university and train station — high demand area
Above-average local crime; tenure recorded as unknown
This licensed six-room HMO on North Road East is positioned for reliable rental performance, a short walk from Plymouth University and the train station. Fully let on 50-week academic contracts, the property produces a gross annual income of £35,300 and a net income of £30,564 after stated running costs — a clear income-generating asset for a buy-to-let investor.
Internally the house offers six letting rooms (one en-suite), a modern communal kitchen with living area, a communal shower room and separate WC. The EPC is C and heating is gas boiler with radiators. The building is an early 20th‑century mid-terrace with double glazing; walls are solid brick and assumed uninsulated, so there is straightforward scope to improve thermal performance and reduce running costs.
Practical considerations are frank: the property sits in a busy, student-focused neighbourhood with above-average crime levels, on-street permit parking only, and a small plot. Tenure is recorded as unknown, and some modernization or targeted maintenance could unlock capital growth or enhance rental value further. Flood risk is low and mobile and broadband connectivity are strong.
Overall this is a turn-key HMO investment in a prime student micro-market, ideal for buyers seeking immediate income and hands-on improvement potential. The property will suit investors comfortable managing a multi-let and operating in a dense urban, student neighbourhood.
7 bedroom terraced house for sale in North Road East, Plymouth, PL4 6AN, PL4 — £350,000 • 7 bed • 2 bath • 1421 ft²
13 bedroom terraced house for sale in North Hill, Plymouth, PL4 — £800,000 • 13 bed • 13 bath • 3610 ft²
6 bedroom terraced house for sale in Alexandra Road, Mutley, Plymouth, Devon, PL4 — £290,000 • 6 bed • 2 bath • 1261 ft²
6 bedroom terraced house for sale in Beechwood Avenue, Mutley, Plymouth. Large 6 bed FULLY LET student HMO, PL4 — £337,500 • 6 bed • 2 bath • 2110 ft²
7 bedroom terraced house for sale in North Road East, Plymouth, PL4 — £350,000 • 7 bed • 3 bath • 1608 ft²
6 bedroom house for sale in Ashford Road, Plymouth, PL4 — £290,000 • 6 bed • 2 bath • 1426 ft²






















































