Cul-de-sac family home with parking and generous rear garden.
Three bedrooms with fitted storage in two rooms
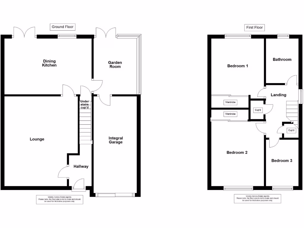
Light-filled and practical, this extended three-bedroom semi-detached house suits families or first-time buyers seeking ready-to-move-in accommodation. The ground floor has a lounge, contemporary dining kitchen with French doors, and a useful garden room that links into the integral garage — ideal for flexible everyday living and easy garden access.
Outside provides strong everyday value: block-paved parking for two to three vehicles, an electric up-and-over garage door, and a generous rear garden with patio seating. The plot size and parking remove common suburban constraints and support family life or simple future reconfiguration if required.
The property is freehold and offered with no onward chain, speeding any move. Practical details to note: there is a single family bathroom serving three bedrooms and the current EPC has expired (a new assessment has been ordered). The house is an average-sized, post-war build presented in good order, so buyers should expect local, not luxury, specification.
Overall this is a straightforward, well-located family home in a quiet cul-de-sac west of Carlisle city centre, close to schools, bus routes and the western bypass. It blends immediate usability with sensible potential for modest modernisation if you want to personalise or improve energy performance further.
3 bedroom semi-detached house for sale in Helvellyn Rise, The Beeches, Carlisle, CA2 — £210,000 • 3 bed • 1 bath • 1035 ft²
3 bedroom detached house for sale in Newtown Road, Carlisle, CA2 — £250,000 • 3 bed • 1 bath • 1066 ft²
3 bedroom semi-detached house for sale in Garrett Way, Carlisle, CA3 — £190,000 • 3 bed • 1 bath • 765 ft²
3 bedroom semi-detached house for sale in Pennine View, Carlisle, Cumbria, CA1 — £225,000 • 3 bed • 2 bath • 792 ft²
2 bedroom semi-detached house for sale in Belah Road, Carlisle, CA3 — £159,950 • 2 bed • 1 bath • 809 ft²
3 bedroom end of terrace house for sale in Wigton Road, Carlisle, CA2 — £180,000 • 3 bed • 2 bath • 1507 ft²










































































































































