WR14 1LU - 3 bedroom town house for sale in Peak View, Malvern, WR14

View on Property Piper

3 bedroom town house for sale in Peak View, Malvern, WR14

Summary - 6 PEAK VIEW MALVERN WR14 1LU

3 bed 3 bath Town House

**Standout Features:**
- Modern terraced townhouse in Malvern
- 3 spacious bedrooms, including a master with ensuite
- 3 bathrooms for convenience
- Open-plan kitchen and living area
- Low maintenance rear garden with access to an en bloc garage
- Chain-free sale

**Concise Property Summary:**
Discover this beautifully presented modern townhouse, offering 1,411 square feet of versatile living space that comfortably accommodates families or multi-generational living. Conveniently situated in the desirable Peak View area of Malvern, this freehold property features three double bedrooms, with the master providing an ensuite shower room. The chic open-plan kitchen and living area is perfect for gatherings, while the low maintenance rear garden, complete with gated access to a garage, offers practical ease.

With multiple bathrooms and well-lit rooms throughout, you'll enjoy comfort and functionality. The property is free from chains, making it an attractive option for those seeking a swift move. Just minutes from local amenities and schools rated "Good," this townhouse strikes an ideal balance of family-friendly warmth and modern living. Don’t miss the chance to secure your future in this delightful home.

Property Details

Brochure Descriptions

Image Descriptions

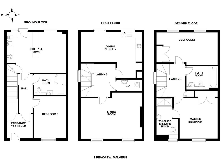
Floorplan Description

Rooms

Textual Property Features

Detected Visual Features

EPC Details

Nearby Schools

Nearest Bars And Restaurants

,,,,}

Nearest General Shops

,,}

Nearest Grocery shops

,,}

Nearest Supermarkets

,,}

Nearest Religious buildings

,,}

Nearest Medical buildings

,,,}

Nearest Leisure Facilities

,,,,}

Nearest Tourist attractions

,,}

Nearest Train stations

,,,,}

Nearest Bus stations and stops

,,,,}

Nearest Hotels

,,}

Tags

Local Market Stats

AirBnB Data

Similar Properties

Meta

High Res Images

Compatible Images

Low res Images

Thumbnails

Raw Images

High Res Floorplan Images

Compatible Floorplan Images

Low res Floorplan Images

FloorplanImages Thumbnail

Raw Floorplan Images