Renovation opportunity near schools and transport — ready for investment or owner-refurbishment.
- Three-bedroom mid-terrace with vacant possession
- Freehold tenure, sold at auction for quick completion
- Requires renovation and modernisation throughout
- Double glazing installed after 2002; mains gas boiler and radiators
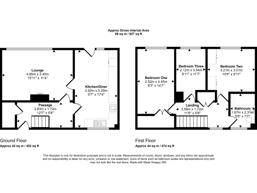
- Approximately 927 sq ft; small rear garden
- Located near schools, bus routes and the A1 motorway
- Area classified as very deprived; local social challenges
- EPC to be confirmed; buyers should arrange surveys
A mid-terrace three-bedroom house in Etal Park offered as a secure sale with vacant possession, presenting clear scope for uplift. The property dates from the late 1960s/early 1970s, has double glazing installed post-2002, mains gas central heating and a small rear garden. Situated close to schools, bus links and the A1, it suits buyers needing quick access to Newcastle city and commuting routes.
This is a renovation project: interiors and finishes will need updating and modernisation, but the layout is conventional and practical — ground-floor kitchen/diner, reception room, downstairs WC, three upstairs bedrooms and a family bathroom. The home's average overall size and 927 sq ft footprint give reasonable room proportions for improvement or reconfiguration.
For investors the property’s freehold tenure, vacant possession and auction sale route allow for a prompt purchase and refurbishment programme. The location in a high-demand commuter area and very affordable council tax band A support rental interest, though note the wider area is described as very deprived and local amenities reflect that context.
Buyers should be aware this is sold as a project: the property needs renovation and any prospective purchaser should budget for works, check the EPC once provided, and carry out their own surveys. No flood risk is recorded and services include mains gas and fast broadband.
3 bedroom semi-detached house for sale in Trowbridge Way, Fawdon, Newcastle upon Tyne, Tyne and Wear, NE3 3TH, NE3 — £105,000 • 3 bed • 1 bath • 894 ft²
3 bedroom terraced house for sale in Hillhead Way, Newcastle upon Tyne, NE5 — £90,000 • 3 bed • 1 bath
3 bedroom terraced house for sale in Hillhead Way, Westerhope, NE5 — £90,000 • 3 bed • 1 bath • 948 ft²
1 bedroom end of terrace house for sale in Drumsheugh Place, ., Newcastle upon Tyne, Tyne and Wear, NE5 3SY, NE5 — £80,000 • 1 bed • 1 bath • 450 ft²
3 bedroom terraced house for sale in Fairholm Road, Benwell, Newcastle upon Tyne, Tyne and Wear, NE4 8AS, NE4 — £110,000 • 3 bed • 1 bath • 1088 ft²
2 bedroom semi-detached house for sale in Eastgate Gardens, Grainger Park, Newcastle upon Tyne, Tyne and Wear, NE4 8DR, NE4 — £110,000 • 2 bed • 1 bath • 819 ft²


























































