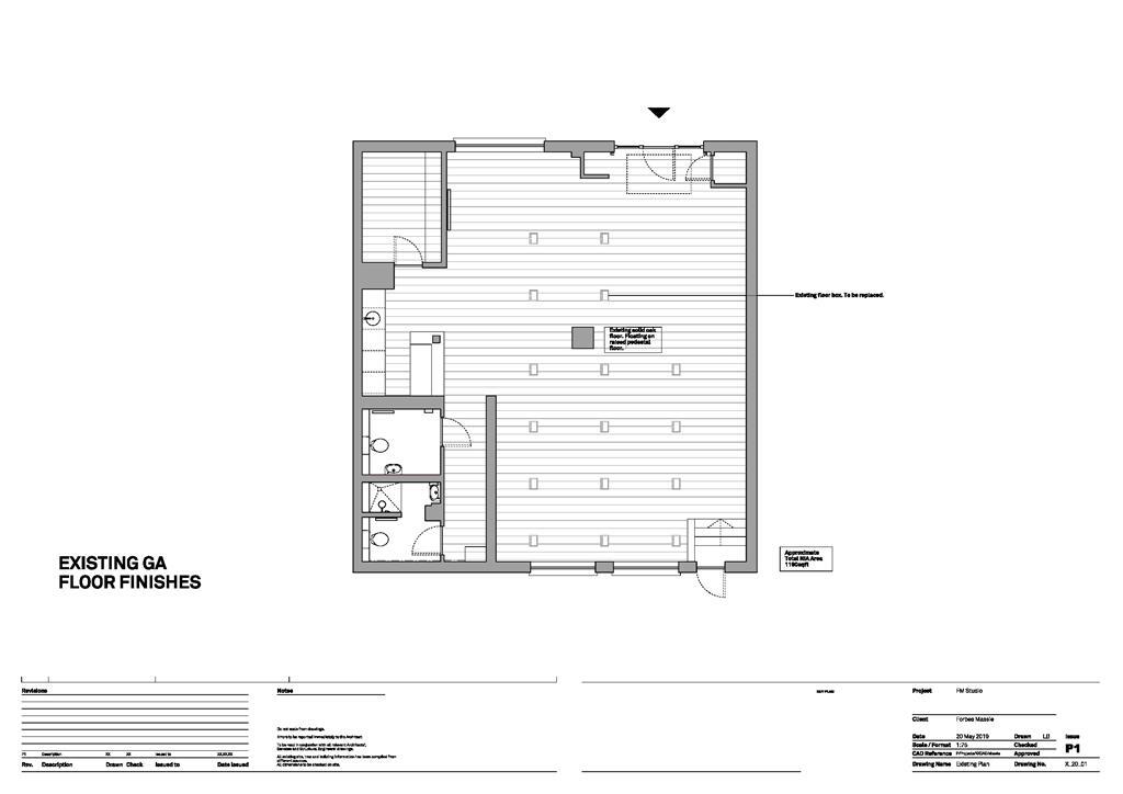
**Standout Features:**
- Ground-floor office with ample natural light from windows on two sides
- Modern engineered wood flooring and a fitted kitchenette
- Air conditioning and two WCs, one with a shower
- Two entrances: main on Tower Bridge Road and rear on Pope Street for easy access and deliveries
- Electric shutters throughout for added security
- Total size of 1,140 square feet
**Summary:**
Discover a spacious ground-floor office on Tower Bridge Road, offering a bright, open-plan workspace with an expansive layout of 1,140 square feet. Ideal for modern business operations, this unit features high-quality engineered wood flooring, two convenient restrooms (one with a shower), and a fully equipped kitchenette. The dual entrances enhance accessibility, making deliveries a breeze, especially with the property positioned just outside the congestion zone.
Located in a vibrant area rich with local amenities, you'll find everything from cafes, shops, and gyms to parks and schools, all within walking distance. The thriving cosmopolitan community is suited for white-collar professionals, presenting a fantastic opportunity for those looking to invest in a dynamic office setting. However, be mindful of the area's high crime rate and related concerns. This attractive office space is perfect for a forward-thinking business looking to establish a presence in one of London's prominent areas—don’t miss out on the chance to secure this versatile and strategically located property.
Office for sale in 170-172 Tower Bridge Road, London, SE1 3LS, SE1 — £1,400,000 • 1 bed • 1 bath • 3575 ft²
Office for sale in 166B Tower Bridge Road, London, SE1 3LZ, SE1 — £1,025,000 • 1 bed • 1 bath • 1578 ft²
Office for sale in 3 Risborough Street, London, SE1 — £1,100,000 • 1 bed • 2 bath • 1409 ft²
Office for sale in Suite 7, 2 Shad Thames, London, SE1 2YU, SE1 — £425,000 • 1 bed • 1 bath • 635 ft²
Office for sale in Bermondsey Street, London, SE1 — £2,300,000 • 1 bed • 1 bath • 3841 ft²
Office for sale in 1 New Concordia Wharf , Mill Street , London, SE1 2BB, SE1 — £510,000 • 1 bed • 1 bath • 786 ft²






































