Character three‑bed cottage with large garden and garage, ideal for countryside family life.
Grade II listed stone cottage with strong period character
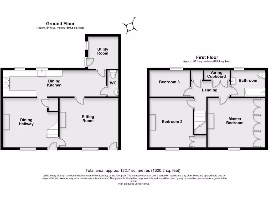
This Grade II listed stone cottage, dating from around 1795, blends genuine period character with practical family space. Set in a semi-rural Golden Valley position and backing onto the Cromford Canal, the house offers attractive views, a generous rear cottage garden and a single garage with driveway for off-street parking. The dining room, sitting room with log burner and large dining kitchen provide flexible living areas for everyday family life and entertaining.
Period features include exposed beams, cast‑iron fireplaces and built-in wardrobes, giving warmth and character throughout. The well-proportioned first floor contains two double bedrooms, a single bedroom and a useful family bathroom. Gas central heating and modern fittings in the kitchen make the house immediately liveable, while the log burner adds an economical, cosy heat source for colder months.
Buyers should note the property’s listed status: repairs and alterations will require listed‑building consent and may be more costly or restricted. The home also sits in a medium flood‑risk zone and broadband speeds are very slow — factors to consider for remote working or resilience planning. There is one bathroom only, which could be a consideration for larger families or modernising buyers.
Overall this cottage will suit buyers seeking authentic period charm in a village setting near countryside walks and Codnor Park Reservoir. It presents immediate comfortable living and scope for sympathetic improvement where permitted by its conservation status.
3 bedroom cottage for sale in Golden Valley, Riddings, DE55 — £325,000 • 3 bed • 2 bath • 1236 ft²
2 bedroom cottage for sale in The Square, Darley Abbey, Derby, DE22 — £279,950 • 2 bed • 1 bath • 745 ft²
2 bedroom semi-detached house for sale in The Hill, Cromford, Matlock, DE4 — £300,000 • 2 bed • 1 bath • 826 ft²
1 bedroom cottage for sale in The Bridge, Milford, Belper, Derbyshire, DE56 — £145,000 • 1 bed • 1 bath • 562 ft²
2 bedroom cottage for sale in New Road, Darley Abbey, Derby, DE22 — £325,000 • 2 bed • 1 bath • 841 ft²
2 bedroom cottage for sale in Woodpecker Hill, Dale Abbey, DE7 — £450,000 • 2 bed • 1 bath • 762 ft²


































































