**Standout Features:**
- Beautiful stone-built detached residence
- Four/five spacious bedrooms
- Versatile living accommodations over two floors
- Large gardens extending to 0.6 acres with stunning countryside views
- Double garage with electric doors and additional parking
- Idyllic semi-rural location near Bingley town center
- Chain-free, freehold property
**Summary:**
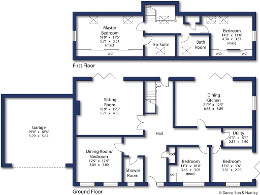
Discover the charm of this stunning stone-built detached residence, ideally situated in a picturesque semi-rural hamlet just two miles from Bingley. Offering four to five adaptable bedrooms, this property provides a perfect canvas for families seeking a comfortable, elegant home. The inviting layout features a spacious lounge with a multi-fuel burning stove, a quality kitchen with granite countertops, and an airy dining room, while large windows throughout ensure a flood of natural light. 
Step outside to explore the expansive landscaped gardens that extend to 0.6 acres, offering ample space for family activities and gatherings, complemented by exceptional views over the Aire Valley. The property further benefits from a double garage and numerous parking options, providing convenience and ease for modern living.
While the picturesque setting and high-quality finishes offer a wealth of potential, it is important to note that the property relies on private water and drainage systems, which require shared management among residents. Additionally, internet options currently indicate slow broadband speeds—something to consider for remote work needs. Overall, this attractive home stands as an exclusive opportunity not to be missed for discerning buyers looking for both comfort and future flexibility. Don’t wait—schedule your viewing today to fully appreciate the elegance and versatility this residence has to offer.
 5 bedroom detached house for sale in Woodvale Crescent, Bingley, West Yorkshire, BD16 — £650,000 • 5 bed • 3 bath • 2540 ft²
 5 bedroom detached house for sale in Woodvale Crescent, Bingley, West Yorkshire, BD16 — £650,000 • 5 bed • 3 bath • 2540 ft² 5 bedroom detached house for sale in The Orchards, Bingley, BD16 — £650,000 • 5 bed • 3 bath • 2200 ft²
 5 bedroom detached house for sale in The Orchards, Bingley, BD16 — £650,000 • 5 bed • 3 bath • 2200 ft² 4 bedroom detached house for sale in Long Lane, Harden, Bingley, West Yorkshire, BD16 — £410,000 • 4 bed • 2 bath • 1300 ft²
 4 bedroom detached house for sale in Long Lane, Harden, Bingley, West Yorkshire, BD16 — £410,000 • 4 bed • 2 bath • 1300 ft² 5 bedroom detached house for sale in Stoney Ridge Road, Bingley, West Yorkshire, BD16 — £750,000 • 5 bed • 4 bath • 2756 ft²
 5 bedroom detached house for sale in Stoney Ridge Road, Bingley, West Yorkshire, BD16 — £750,000 • 5 bed • 4 bath • 2756 ft² 4 bedroom detached house for sale in Dene Bank, Bingley, West Yorkshire, BD16 — £550,000 • 4 bed • 2 bath • 1278 ft²
 4 bedroom detached house for sale in Dene Bank, Bingley, West Yorkshire, BD16 — £550,000 • 4 bed • 2 bath • 1278 ft² 5 bedroom house for sale in Beck Road, Micklethwaite, Bingley, West Yorkshire, BD16 — £895,000 • 5 bed • 4 bath • 3400 ft²
 5 bedroom house for sale in Beck Road, Micklethwaite, Bingley, West Yorkshire, BD16 — £895,000 • 5 bed • 4 bath • 3400 ft²


































































































































































































