Far-reaching views towards the South Downs
Set on popular Wannock Lane in Willingdon, this three-bedroom semi-detached home offers far-reaching views towards the South Downs and a long, mature rear garden. The main living space is open-plan and bright, with a cosy log burner and patio doors that connect indoor living to the garden — an easy, family-friendly flow. Driveway parking for two cars and a large private plot are notable practical benefits.
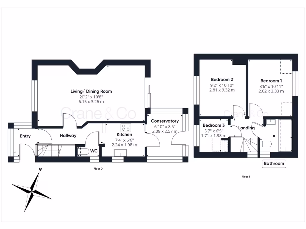
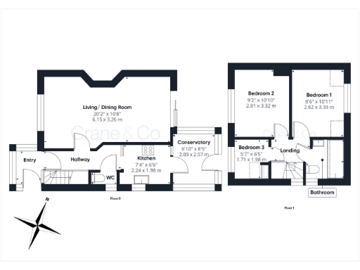
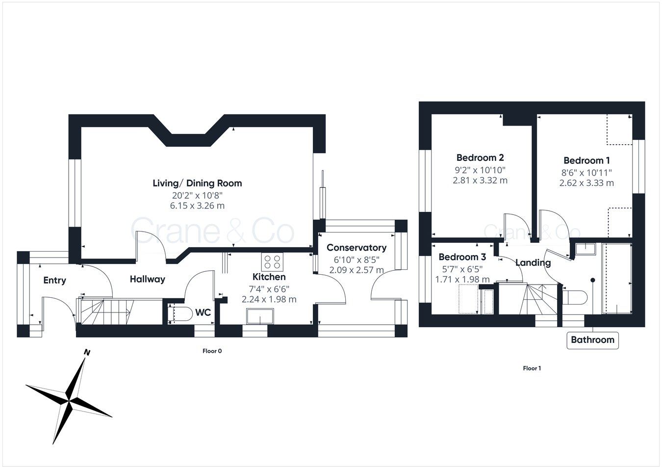
The house is compact (approx. 550 sq ft) and arranged over two storeys with three bedrooms and a single bathroom, so internal space is limited. The property was built in the 1930s and has double glazing (install date unknown); buyers should expect some updating and modernisation to suit contemporary preferences. Council tax is moderate and there is no flood risk.
This location suits families who value access to good primary and secondary schools and outdoor life — the South Downs Way is minutes away. The long garden provides room for children to play, vegetable beds, and scope for a summerhouse or garden studio. Overall, the home offers character, outdoor space and strong local amenities, but comes with compact interiors and some potential refurbishment needs to unlock its full potential.























































































