Ready-for-build corner parcel near park and transport links for small developers.
Freehold plot approx quarter of an acre, accessed from Tennyson Road
Planning appeal allowed for three-bed detached (ref: 21/01651/REFUSE)
Cleared site with mature boundary trees offering privacy
Located near Wardown Park, golf club and London Road amenities
Sold at public auction on 10 Dec 2025; viewings late November
No buyer’s premium; purchasers pay £1,500 administration fee (incl. VAT)
Services not guaranteed — buyers must confirm availability and connections
Previous planning refusal — conditions from appeal may still apply
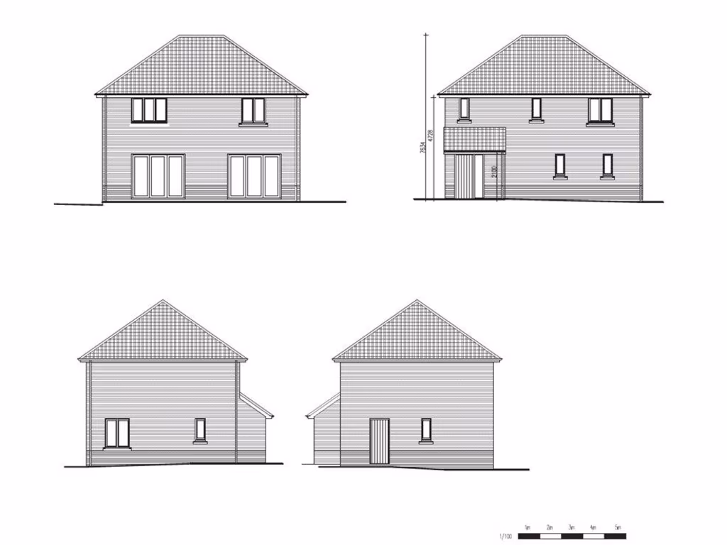
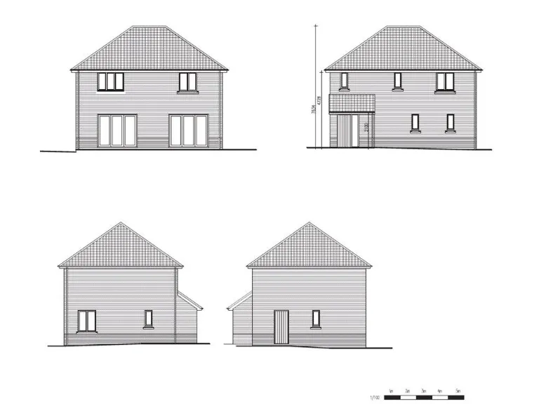
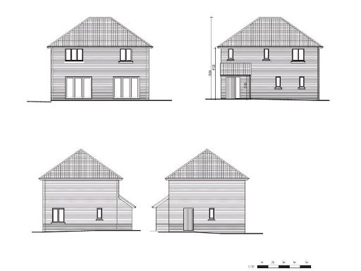
A large freehold development plot in Wardown Park, Luton, offered at public auction. The site measures approximately a quarter of an acre and is accessed from Tennyson Road, with mature boundary trees and hedging providing privacy. It sits just off London Road, close to Wardown Park and the local golf club, in an area popular with commuters and young families.
Planning permission in principle exists for a three-bedroom detached house (planning ref: 21/01651/FUL). The original application was refused (28 Jan 2022) but the subsequent appeal was allowed (27 Oct 2022), establishing a viable route to build subject to any remaining conditions. Buyers should confirm outstanding planning conditions and statutory services prior to purchase.
This lot will be sold by public auction on 10 December 2025; viewings will be arranged at the end of November for those who have registered for the legal pack. There is no buyer’s premium, but purchasers must pay an administration fee of £1,500 (incl. VAT) and any disbursements listed in the legal pack. Interested parties should make their own enquiries regarding mains services and local authority requirements.
This plot suits residential developers, small-housebuilders or owner-occupiers seeking a one-off build in a well-located town setting. The cleared parcel and existing access reduce initial site preparation, but buyers should budget for build costs, any planning conditions, and typical site investigations before committing.
Land for sale in High Town Road, Luton, LU2 — £95,000 • 1 bed • 1 bath
Land for sale in Luton Road, Chalton, LU4 — £250,000 • 1 bed • 1 bath
Land for sale in Ashcroft Road, Luton, LU2 — £1,500,000 • 1 bed • 1 bath
Land for sale in LAND - Ashcroft Road, Luton, LU2 — £325,000 • 1 bed • 1 bath
Land for sale in Luton Road, Chalton, LU4 — £250,000 • 1 bed • 1 bath
Plot for sale in Sutherland Place, Luton, Bedfordshire, LU1 3SP, LU1 — £230,000 • 1 bed • 1 bath














































