TW16 5AD - 3 bed detached family home in Spelthorne, TW16 5AD

View on Property Piper

3 bedroom detached house for sale in Lower Sunbury, Sunbury-on- Thames, TW16

Summary - 109 Staines Road East TW16 5AD

3 bed 1 bath Detached

Chain-free detached house within easy walking distance of Sunbury rail..
- Chain-free three double bedrooms and freehold tenure
- 0.3 mile to Sunbury rail for commuter convenience
- Lounge/diner opening onto a decent private garden
- Garage plus off-street parking for two vehicles
- Single family bathroom only for three bedrooms
- Council tax banding described as expensive
- Low flood risk; mains gas boiler and radiators
- Local area records higher-than-average crime levels
This three double-bedroom detached house in Lower Sunbury offers straightforward family living on a decent plot, close to Sunbury station and local schools. The property is chain-free and freehold, with a fitted kitchen, lounge/diner opening to a garden, downstairs WC, garage and off-street parking — practical features for daily family life and commuting.

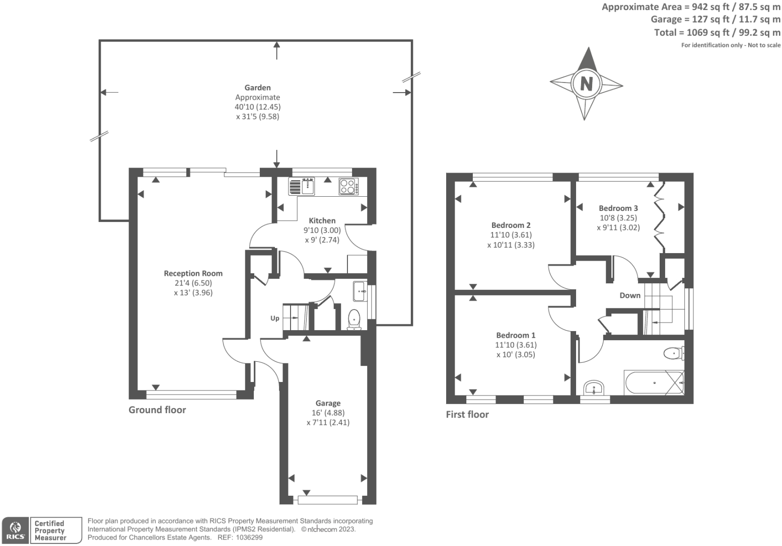
The home measures around 1,069 sq ft and follows a traditional two-storey layout typical of its era (constructed 1983–1990). Internally the accommodation is average-sized and largely functional, though there is clear scope to modernise or reconfigure to suit contemporary family needs — an opportunity for buyers wanting to add value.

Buyers should note practical considerations: there is a single family bathroom for three double bedrooms, council tax is described as expensive, and local crime levels are relatively high. On the positive side, flood risk is low, mains gas heating and double glazing are in place, and several Good and Outstanding-rated primary and secondary schools lie within easy reach.

Overall, this property will suit families seeking convenient transport links and outside space with immediate move-in potential, or purchasers planning modest updating to personalise layout and finishes.

Property Details

Image Descriptions

Floorplan Description

Rooms

Textual Property Features

Target Audience

AI Tags

Detected Visual Features

EPC Details

Nearby Schools

Nearest Bars And Restaurants

,,,,}

Nearest General Shops

,,}

Nearest Grocery shops

,,}

Nearest Supermarkets

,,}

Nearest Religious buildings

,,}

Nearest Medical buildings

,,,}

Nearest Airports

,}

Nearest Leisure Facilities

,,,,}

Nearest Tourist attractions

,,}

Nearest Train stations

,,,,}

Nearest Bus stations and stops

,,,,}

Nearest Hotels

,,}

Tags

Local Market Stats

AirBnB Data

Similar Properties

Meta

High Res Images

Compatible Images

Low res Images

Thumbnails

Raw Images

High Res Floorplan Images

Compatible Floorplan Images

Low res Floorplan Images

FloorplanImages Thumbnail

Raw Floorplan Images