Large four-bedroom home with double garage, big garden and excellent school catchment..
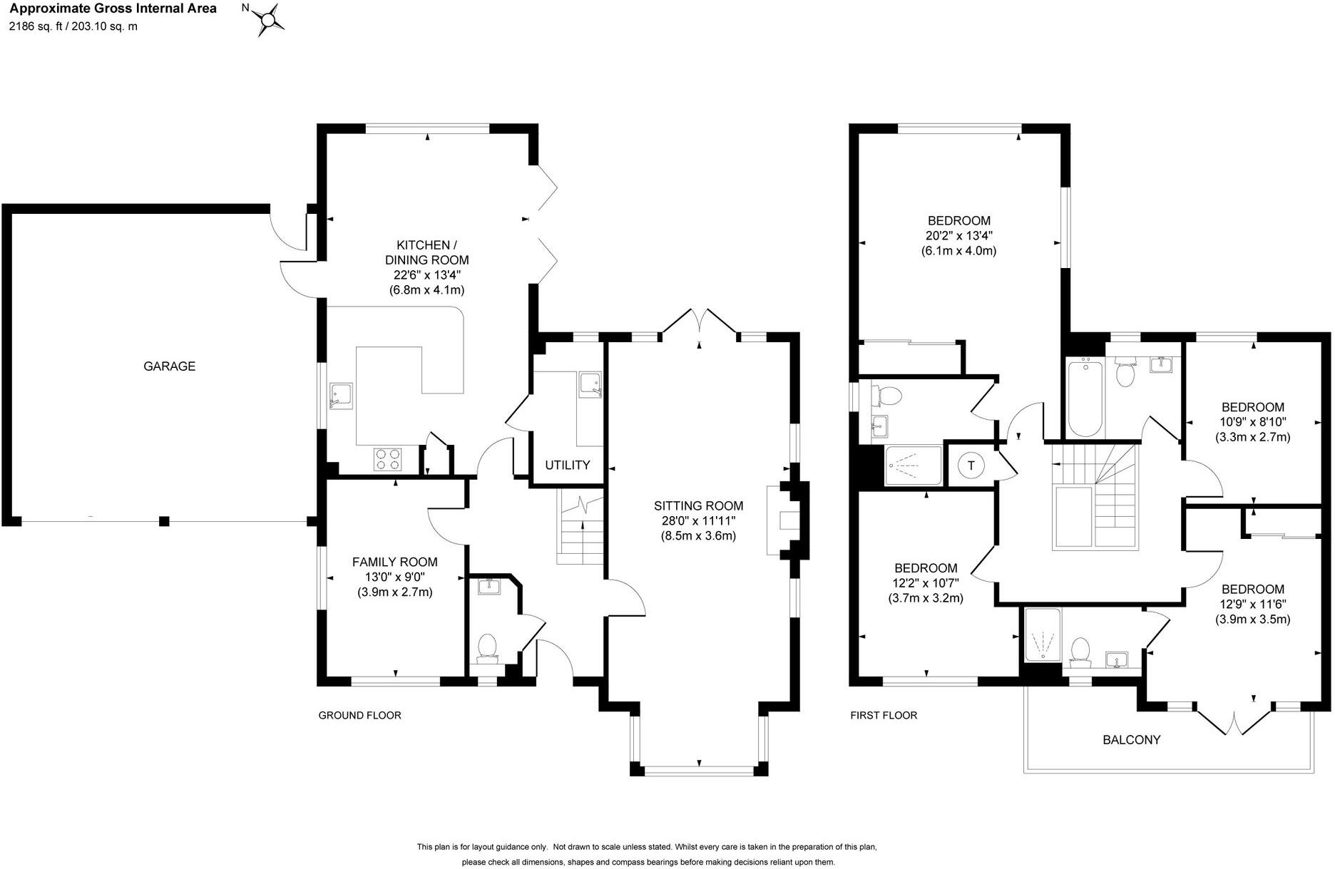
- Four double bedrooms, two en-suite bedroom suites
- Approximately 2,186 sq ft of accommodation
- Large enclosed rear garden c.62' x 55'
- Double garage plus driveway parking alongside
- Triple-aspect sitting room with wood-burning stove
- Separate playroom or home office for flexible use
- EPC rating B; mains gas central heating
- Council tax described as quite expensive (ongoing cost)
Set on one of the larger plots in a popular development on the town's southern edge, this well-proportioned four-bedroom detached house offers family-friendly living and excellent local amenities. The layout includes two bedroom suites, two further double bedrooms, and three bathrooms, providing flexible accommodation for children and guests. The triple-aspect sitting room with a wood-burning stove and a separate playroom/home office add comfortable, versatile reception space for everyday family life.
Outside, the large fully enclosed rear garden (approximately 62' x 55') and double garage with driveway deliver practical outdoor space, secure parking and scope for garden projects or extensions (subject to consent). The property is within walking distance of the town centre and hospital, and falls into the Warden Park Secondary Academy catchment — a meaningful draw for families.
Practical details: the house extends to around 2,186 sq ft, is freehold, rated EPC B, has mains gas central heating with a boiler and radiators, fast broadband and excellent mobile signal, and sits in a very low-crime, very affluent area. Council tax is noted as quite expensive and buyers should factor this into ongoing costs.
Guide Price: £800,000–£850,000. Overall this property suits established families seeking space, good school catchment and countryside access, or buyers who want a substantial, ready-to-live-in home with potential to personalise further.
4 bedroom detached house for sale in Old House Lane, Haywards Heath, RH16 — £800,000 • 4 bed • 3 bath • 1636 ft²
4 bedroom detached house for sale in Rocky Drive, Haywards Heath, RH16 — £800,000 • 4 bed • 3 bath • 1617 ft²
4 bedroom detached house for sale in Cedar Avenue, Haywards Heath, RH16 — £625,000 • 4 bed • 3 bath • 1834 ft²
4 bedroom detached house for sale in Marlpit Close, East Grinstead, West Sussex, RH19 — £675,000 • 4 bed • 1 bath • 1752 ft²
4 bedroom house for sale in Old House Lane, Haywards Heath, RH16 — £875,000 • 4 bed • 3 bath • 1921 ft²
4 bedroom detached house for sale in Hoblands, Haywards Heath, RH16 — £500,000 • 4 bed • 1 bath • 1083 ft²














































































































































